Министерство образования и науки Украины
Донбасская государственная машиностроительная академия
Контрольная работа
по дисциплине «Проектный анализ»
г. Краматорск 2010
Тесты и контрольные вопросы
Инвестиционный проект за четыре года своей реализации позволит инвестору увеличить первоначально вкладываемые инвестиционные средства в 2,7 раза. Определите величину сложной процентной ставки?
а) 22 %; г) 28 %;
б) 43 %; д) свой вариант ответа.
в) 50 %;
, 
(см. Приложение А), отсюда і = 0,28 или 28%
Ответ:
г) 28%
В соответствии с кредитным соглашением, общая сумма долга с процентами в размере 670 890 грн. будет погашаться равными выплатами в течение пяти лет, процентная ставка 17 % годовых. Определите сумму, выплачиваемую каждый год для погашения долга.
а) 209 696 грн.; в) 293 800 грн.;
б) 95 645 грн.; д) свой вариант.
Для аннуитета:
,
где (см. Приложение В), тогда = 95 645 грн.
Ответ:
б) 95 645 грн.
Что относится к притокам (оттокам) денежных средств от инвестиционной деятельности:
а) проценты по долгосрочным и краткосрочным кредитам;
б) краткосрочные кредиты;
в) покупка и продажа оборудования
;
г) покупка земли;
д) погашение задолженности по кредитам;
е) нематериальные активы;
ж) амортизация;
з) прирост оборотного капитала.
Ответ:
в) покупка и продажа оборудования;
г) покупка земли;
е) нематериальные активы;
з) прирост оборотного капитала
Основным преимуществом чистой текущей стоимости является:
а) возможность использования в качестве сравнительного показателя, но не в качестве критериального;
б) позволяет определить эффективность инвестиционного портфеля предприятия;
в) показывает: насколько реальная доходность по проекту превышает стоимость капитала;
г) невозможность изменения средневзвешенной стоимости капитала в силу особенностей расчета данного критерия.
Ответ:
б) позволяет определить эффективность инвестиционного портфеля предприятия.
Задача 9.4
Значение чистой текущей стоимости по рассматриваемому проекту составило 762 340 грн. Произошли следующие изменения в экономической среде при реализации инвестиционного проекта:
– повысился процент по кредиту на 4 %, в результате чего значение чистой текущей стоимости составило 737 120 грн.;
– повысились постоянные издержки на 11 %, в результате чего значение чистой текущей стоимости составило 751 300 грн.;
Забиваем Сайты В ТОП КУВАЛДОЙ - Уникальные возможности от SeoHammer
Каждая ссылка анализируется по трем пакетам оценки: SEO, Трафик и SMM.
SeoHammer делает продвижение сайта прозрачным и простым занятием.
Ссылки, вечные ссылки, статьи, упоминания, пресс-релизы - используйте по максимуму потенциал SeoHammer для продвижения вашего сайта.
Что умеет делать SeoHammer
— Продвижение в один клик, интеллектуальный подбор запросов, покупка самых лучших ссылок с высокой степенью качества у лучших бирж ссылок.
— Регулярная проверка качества ссылок по более чем 100 показателям и ежедневный пересчет показателей качества проекта.
— Все известные форматы ссылок: арендные ссылки, вечные ссылки, публикации (упоминания, мнения, отзывы, статьи, пресс-релизы).
— SeoHammer покажет, где рост или падение, а также запросы, на которые нужно обратить внимание.
SeoHammer еще предоставляет технологию Буст, она ускоряет продвижение в десятки раз,
а первые результаты появляются уже в течение первых 7 дней.
Зарегистрироваться и Начать продвижение
– повысились затраты на исходные материалы на 14 %, в результате чего значение чистой текущей стоимости составило 640 560 грн.
Необходимо осуществить позиционирование данных факторов в матрице чувствительности и прогнозируемости и сделать выводы.
Решение
:
1. Определим процент изменения чистой текущей стоимости при каждом изменении в экономической среде:
– повысился процент по кредиту на 4 %
% NPV1
= 
– повысились постоянные издержки на 11 %
% NPV2
= 
– повысились затраты на исходные материалы на 14 %
% NPV3
= 
2. Рассчитаем эластичность изменения чистой текущей стоимости при изменении каждого фактора:
– повысился процент по кредиту на 4 %-
R1
=
– повысились постоянные издержки на 11 % -
R2
=
– повысились затраты на исходные материалы на 14 % -
R3
=
3. Сведем все вышеприведенные расчеты в таблицу и проставим рейтинг чувствительности проекта к изменениям в экономической среде (рейтинг опасности риск-факторов):
| Факторы |
Изменение фактора |
Процент изменения NPV |
Коэффициент
эластичности
|
Рейтинг |
| 1. Процент по кредиту |
+4 % |
3,3 % |
0,8 |
1 |
| 2. Постоянные издержки |
+11 % |
1,4 % |
0,1 |
2 |
| 3. Затраты на исходные материалы |
+14 % |
16 % |
1,1 |
1 |
4. Выполним оценку чувствительности и прогнозируемости каждого фактора инвестиционного проекта.
| Факторы |
Чувствительность |
Возможность прогнозирования |
| 1. Процент по кредиту |
высокая |
средняя |
| 2. Постоянные издержки |
средняя |
высокая |
| 3. Затраты на исходные материалы |
высокая |
низкая |
5. Составим матрицу чувствительности и прогнозируемости и осуществим позиционирование данных факторов в матрице.
| Прогнозируемость |
Чувствительность |
| Высокая |
Средняя |
Низкая |
| Низкая |
I
Затраты на исходные материалы |
I
|
II
|
| Средняя |
I Процент по кредиту |
II |
III |
| Высокая |
II |
III постоянные издержки |
III |
В первую зону попали факторы „Затраты на исходные материалы” и „Процент по кредиту”, следовательно, они требуют дальнейшего анализа различными методами анализа рисков, так как к их изменению наиболее чувствителен чистый приведенный доход проекта, и они обладают наименьшей прогнозируемостью.
В третьей зоне, зоне наибольшего благополучия, находится фактор „Постоянные издержки”, следовательно, при всех прочих предположениях и расчетах данный фактор является наименее рискованным и не подлежит дальнейшему рассмотрению.
Задача 6.24
Графическим методом определить внутреннюю норму доходности проекта при следующих условиях: сумма инвестиционных средств на проект – 90 тыс. грн. период эксплуатации проекта – 6 лет, величина равномерного денежного потока за весь период – 280 тыс. грн. Определить по графику, при какой ставке процента на капитал величина чистой текущей стоимостисоставит 20 тыс. грн.
Решение:
1 Определим ежегодный денежный поток по проекту:
ДПгодовой
= = 46,7 тыс. грн.
2 Методом „проб и ошибок” подберем ставку процента до первого отрицательного значения чистого приведенного дохода:
| Ставка процента |
Год |
Дисконтный множитель |
Дисконтированный денежный поток, тыс.грн. |
Суммарный денежный поток |
Чистая текущая стоимость |
| 32 % |
1 |
0,7576 |
35,4 |
118,3 |
28,3 |
| 2 |
0,5739 |
26,8 |
| 3 |
0,4348 |
20,3 |
| 4 |
0,3294 |
15,4 |
| 5 |
0,2495 |
11,6 |
| 6 |
0,189 |
8,8 |
| 36 % |
1 |
0,7353 |
34,3 |
109,1 |
19,1 |
| 2 |
0,5407 |
25,2 |
| 3 |
0,3975 |
18,6 |
| 4 |
0,2923 |
13,6 |
| 5 |
0,2149 |
10 |
| 6 |
0,158 |
7,4 |
| 40 % |
1 |
0,7143 |
33,3 |
101,1 |
11,1 |
| 2 |
0,5102 |
23,8 |
| 3 |
0,3644 |
17 |
| 4 |
0,2603 |
12,1 |
| 5 |
0,1859 |
8,7 |
| 6 |
0,1328 |
6,2 |
| Ставка процента |
Год |
Дисконтный множитель |
Дисконтированный денежный поток, тыс.грн. |
Суммарный денежный поток |
Чистая текущая стоимость |
| 44 % |
1 |
0,6944 |
32,4 |
94,1 |
4,1 |
| 2 |
0,4823 |
22,5 |
| 3 |
0,3349 |
15,6 |
| 4 |
0,2326 |
10,9 |
| 5 |
0,1615 |
7,5 |
| 6 |
0,1122 |
5,2 |
| 48 % |
1 |
0,6757 |
31,5 |
87,9 |
-2,1 |
| 2 |
0,4565 |
21,3 |
| 3 |
0,3085 |
14,4 |
| 4 |
0,2084 |
9,7 |
| 5 |
0,1408 |
6,6 |
| 6 |
0,0952 |
4,4 |
3. Определим приближенное значение внутренней нормы доходности:
Сервис онлайн-записи на собственном Telegram-боте
Попробуйте сервис онлайн-записи VisitTime на основе вашего собственного Telegram-бота:
— Разгрузит мастера, специалиста или компанию;
— Позволит гибко управлять расписанием и загрузкой;
— Разошлет оповещения о новых услугах или акциях;
— Позволит принять оплату на карту/кошелек/счет;
— Позволит записываться на групповые и персональные посещения;
— Поможет получить от клиента отзывы о визите к вам;
— Включает в себя сервис чаевых.
Для новых пользователей первый месяц бесплатно.
Зарегистрироваться в сервисе
инвестиционный прибыль стоимость денежный

4. Методом интерполяции найдем более точное значение внутренней нормы доходности:


Внутренняя норма доходности по проекту составила 46,6 %.
Стоимость капитала составляет 35,5 % при чистом приведенном доходе равном 20 тыс. грн.
Задача 5.10
Предприятие планирует приобрести новое оборудование, для чего необходимы инвестиции в размере 1 820 тыс. грн. При реализации проекта планируется выручка по годам: 1-й год – 1 060 тыс. грн.; 2-й год – 1 225 тыс. грн.; 3-й год – 1 310 тыс. грн.; 4-й год – 1 425 тыс. грн.; 5-й год – 1 530 тыс. грн. Текущие расходы (без амортизации) распределяются следующим образом: в 1-й год – 475 тыс. грн.; во 2-й год – 562 тыс. грн.; в 3-й год – 627 тыс. грн.; в 4-й год – 715 тыс. грн.; в 5-й год – 795 тыс. грн. Амортизация начисляется по налоговому методу, норма амортизации – 24 % годовых. Налог на прибыль составляет 25 %. Инвестор предъявил определенные требования к проекту: период окупаемости должен быть в пределах 4 лет, а норма прибыли по проекту составляла не менее 25 %. Сделать вывод о целесообразности реконструкции цеха предприятия.
Решение:
1. Определим простую норму прибыли по формуле:

2. Определим чистую среднегодовую прибыль по проекту:
| Год |
Выручка, тыс.грн. |
Текущие расходы (без амортизации), тыс.грн. |
Амортизация (АО), тыс.грн. |
Прибыль, тыс.грн. |
Налог на прибыль, тыс.грн. |
Чистая прибыль (ЧД), тыс.грн. |
| 1 |
1060 |
475 |
1820*24%=436,8 |
148,2 |
37,1 |
111,1 |
| 2 |
1225 |
562 |
1383,2*24%=332,0 |
331 |
82,8 |
248,2 |
| 3 |
1310 |
627 |
1051,2*24%=252,3 |
430,7 |
107,7 |
323,0 |
| 4 |
1425 |
715 |
798,9*24%=191,7 |
518,3 |
129,6 |
388,7 |
| 5 |
1530 |
795 |
607,2*24%=145,7 |
589,3 |
147,3 |
442,0 |
| 1358,5 |
2017,5 |
504,5 |
1513,0 |
Pnet
= 1513/5 =302,6 тыс. грн.
3. Определим стоимость оборудования к концу периода реализации проекта:
= 1820-1358,5 = 461,5 тыс.грн.
Тогда простая норма прибыли составит:
26,5 %
4. Период окупаемости проекта определяется по формуле:
,
где ДПср
= ДП : 5– среднегодовой денежный поток
5. Денежный поток рассчитывается по формуле:
= 1513 + 1358,5 = 2 871,5 тыс. грн.
Тогда период окупаемости проекта составит:
3,2 года.
Вывод
: полученная простая норма прибыли 26,5 % больше принятой на предприятии нормы прибыли равной 25 % и срок окупаемости инвестиций равный 3,2 года меньше установленного на предприятии периода в пределах 4 лет, следовательно, инвестиционный проект может быть принят к реализации, так как соответствует требованиям инвестора.
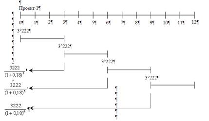
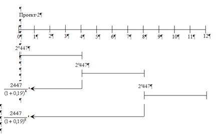
Задача 7.7
Сравнить проекты с различными периодами продолжительности методом цепного повтора. По результатам расчетов сделать выводы.
Проекты
|
1 |
2 |
| Сумма инвестиционных средств, тыс. грн. |
12 000 |
10 000 |
Денежный поток, всего,
в т.ч. по годам, тыс. грн.:
|
22 000
|
19 000
|
| 1-й год |
4 000 |
4 000 |
| 2-й год |
8 000 |
5 000 |
| 3-й год |
10 000 |
6 000 |
| 4-й год |
– |
4 000 |
| Стоимость капитала предприятия, % |
18 |
19 |
Решение:
1. Определим чистый приведенный доход для каждого из проектов:


2. Наименьшее общее кратное для двух рассматриваемых проектов составит 12. Таким образом, общий период реализации двух проектов составит 12 лет, в рамках данного периода проект 1 будет реализован 4 раза, а проект 2 – 3 раза.
3. Графическим методом определим суммарное значение чистой текущей стоимости по каждому из проектов с учетом разной продолжительности проектов:

Тогда:


Тогда:

Таким образом, к реализации следует принять проект 1, так как его суммарное значение чистой текущей стоимости выше суммарного значения NPV проекта 2 и составило 7 103 грн.
Задача 6.10
По данным бизнес-плана определить показатели эффективности проекта:
| Показатели бизнес-плана |
Значение, грн. |
| Сумма инвестиций |
413 270 |
| Денежный поток по проекту, в том числе по годам: |
928 870 |
| 1-й год |
227 540 |
| 2-й год |
305 460 |
| 3-й год |
395 870
|
| Стоимость капитала предприятия, % |
11 |
Сделать выводы о целесообразности реализации инвестиционного проекта на предприятии.
Решение:
1. Рассчитаем чистый приведенный доход проекта по формуле для ординарного денежного потока:

= (227 540×0,9009 + 305 460×0,8116 + 395 870×0,7312) – 413 270 = 742 362 - 413 270 = 329 092 (грн.)
Чистый приведенный доход положителен и составил 329 092 грн., что свидетельствует о необходимости принятия данного проекта, так как проект принесет дополнительный доход на вкладываемый капитал.
2. Рассчитаем индекс доходности инвестиционного проекта:

Индекс доходности составил довольно высокое значение 1,8, что свидетельствует об эффективности инвестирования, так как, на каждую гривну инвестированных средств предприятие сможет получить 1,8 денежных поступлений в их текущей стоимости.
3. Рассчитаем период окупаемости инвестиционного проекта:
года
Обращаясь к показателю периода окупаемости, обнаруживаем, что вкладываемые предприятием средства окупятся через год и 8 месяцев. Учитывая общий срок реализации инвестиционного проекта 3 года, данный проект характеризуется достаточно быстрой окупаемостью, и, как следствие, низким уровнем риска.
4. Определим внутреннюю норму доходности методом „проб и ошибок”, для чего будем подбирать ставку процента до первого отрицательного значения чистого приведенного дохода:
| Показатели |
Годы |
| 1 год |
2 год |
3 год |
| Денежный поток |
227 540 |
305 460 |
395 870 |
| Ставка процента 35% |
| Дисконтный множитель |
=0,7407 |
=0,5487 |
=0,4064 |
| Дисконтированный денежный поток |
168539 |
167606 |
160882 |
| Чистый приведенный доход (NPV) |
(168539 + 167606 + 160882) – 413270 = +83 756 |
| Ставка процента 40% |
| Дисконтный множитель |
=0,7143 |
=0,5102 |
=0,3644 |
| Дисконтированный денежный поток |
162532 |
155846 |
144255 |
| Чистый приведенный доход (NPV) |
(162532 + 155846 + 144255) – 413270 = +49 363 |
| Ставка процента 45% |
| Дисконтный множитель |
=0,6897 |
=0,4756 |
=0,328 |
| Дисконтированный денежный поток |
156934 |
145277 |
129845 |
| Чистый приведенный доход (NPV) |
(156934 + 145277 + 129845) – 413270 = +18 786 |
| Ставка процента 50% |
| Дисконтный множитель |
=0,6667 |
=0,4444 |
=0,2963 |
| Дисконтированный денежный поток |
151701 |
135746 |
117296 |
| Чистый приведенный доход (NPV) |
(151701 + 135746 + 117296) – 413270 = –8 526 |
Графическим методом определим приближенное значение внутренней нормы доходности:
 
Более точное значение внутренней нормы доходности определим методом интерполяции:


Внутренняя норма доходности составила приблизительно 48 %, что значительно выше принятого на предприятии нижнего порога рентабельности инвестирования (11 %), а значит, данный проект выдерживает тест на рентабельность вложения денежных средств. Инвестиционный проект имеет высокий запас прочности 48 % – 11 % = 37 %, следовательно, при всех изменениях во внешней и внутренней среде проект остается эффективным.
Вывод
: проект обладает высокой эффективностью и может быть рекомендован к практической реализации.
|