Контрольная работа
По геологии
Задача 1
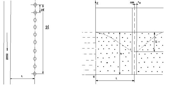
Определить понижение уровня в центральной скважине водозабора, состоящего из n=3 скважин, расположенных параллельно совершенному урезу реки на расстоянии 2 100 м друг от друга. Расход каждой скважины Q0
=800 м3
/сут, радиус фильтра r0
=0.1м. Водоносные аллювиальные пески имеют мощность hст
=40 м, коэффициент фильтрации К=8 м/сут ; водоотдача 0.1 Прогноз выполнить для t=700 сут . Рассмотреть два варианта расстояния скважин до реки d1
=100м ;и d2
=500 м. Сопоставить полученные решения.
Решение:
Рассмотрим 1 вариант d1
=100м Величина уровнепроводности определяется по формуле:
а= м2
/сут
Время наступления стационарного режима фильтрации определим по формуле:
tс
=
Rк
=2(d+ н.д
) т.к река с совершенным урезом то Rк
=2d
tс
= 31 сут.
Так как длинна водозаборного ряда 2l=(n-1)*2 =(3-1)*100=200 м и соблюдается условие d l, можем использовать формулу Маскета Лейбензона:
S0
= * *[ ]=4.52 м
Так как S 0.25hст
данное решение не подлежит корректировке.
Рассмотрим 2 вариант при d2
=500 м.
tс
= = 781 сут
Радиус контура питания Rк
=2d2
=2*500=1000 м .
Так как расстояние между взаимодействующими скважинами ri
=2 0.3Rk
, можем использовать формулу:
S=
S=
Увеличение расстояния скважины от реки существенно увеличило период нестационарного режима фильтрации, но мало повлияло на величину понижения.
Задача 2
Кольцевой водозабор ,состоящий из n=8 скважин ,вскрывает напорный пласт известняков мощностью m=50 м, коэффициент фильтрации К=4 м/сут. Выше залегает весьма водообильный горизонт грунтовых вод, отделенный от известняков слоем суглинков мощностью m0
=25 м и коэффициентом фильтрации К0
=10-4
м/сут. Упругая водоотдача известняков =4*10-5
. Расстояние между скважинами 2 , суммарный водоотбор Qсум
=8000м3
/сут. Радиус фильтра скважины r0
=0.15м, длина фильтра l0
=15м. Фильтр расположен в средней части пласта. Избыточный напор над кровлей известняков Н=25 м.
Необходимо определить: время наступления стационарного режима фильтрации в скважинах, величину сработки уровня и остаточный напор.
Решение:
Определим радиус кольцевого водозабора:
R0
= =
Оценим величину параметра перетекания по формуле:
Забиваем Сайты В ТОП КУВАЛДОЙ - Уникальные возможности от SeoHammer
Каждая ссылка анализируется по трем пакетам оценки: SEO, Трафик и SMM.
SeoHammer делает продвижение сайта прозрачным и простым занятием.
Ссылки, вечные ссылки, статьи, упоминания, пресс-релизы - используйте по максимуму потенциал SeoHammer для продвижения вашего сайта.
Что умеет делать SeoHammer
— Продвижение в один клик, интеллектуальный подбор запросов, покупка самых лучших ссылок с высокой степенью качества у лучших бирж ссылок.
— Регулярная проверка качества ссылок по более чем 100 показателям и ежедневный пересчет показателей качества проекта.
— Все известные форматы ссылок: арендные ссылки, вечные ссылки, публикации (упоминания, мнения, отзывы, статьи, пресс-релизы).
— SeoHammer покажет, где рост или падение, а также запросы, на которые нужно обратить внимание.
SeoHammer еще предоставляет технологию Буст, она ускоряет продвижение в десятки раз,
а первые результаты появляются уже в течение первых 7 дней.
Зарегистрироваться и Начать продвижение
В= 7071м
Величина радиуса контура питания:
Rk
=1.12*B=1.12*7071=7919.5м
Условие ri
k
соблюдается
Величина пьезопроводности известняков:
а#
= м2
/сут
Стационарный режим наступит через время :
tс
= =31 сут
Величину понижения уровня в совершенной скважине определим по формуле:
S=
S= + *
Величину сопротивления, учитывающего несовершенство скважин, определяем по графику:
 =
нс
=8 , тогда дополнительное понижение за счет несовершенства определим по формуле:
м
А общее понижение уровня :
S=23.9+6.37=30.27м
Остаточный напор над кровлей отсутствует.
Понижение ниже кровли :
25-30.27=-5.27 м , что сопоставимо с .
Задача 3
Водоносный горизонт мощностью 40 м приурочен к водоносным аллювиальным пескам с коэффициентом фильтрации К=15 м/сут, водоотдачей 0.05. На расстоянии d=300 м от уреза реки эксплуатируются две скважины с расходами Q1
=1500 м3
/сут и Q2
=1000 м3
/сут, расположенные на расстоянии 2 друг от друга. Радиус фильтра скважин r0
=0.1м. Определить: понижение уровня в скважине 2 на моменты времени 1;3;10;100 и 500 суток. Качественно описать развитие понижения во времени. Построить график S- . Графически сравнить полученные результаты с понижением уровня в неограниченном пласте.
Решение:

Определим величину уровнепроводности пласта:
а = = =12000 м2
/сут
Понижение в скважине 2 будет формироваться под воздействием четырех скважин: двух реальных и двух отображенных. Определим расстояние до каждой из них.
До скв1: r1
=2 250м; до скв 2: r2=
r0
;
По теореме Пифагора:
=
До отображенной скв 2:

Используя формулы:
rкв
;
t ;
Т = ;
Определим начало влияния каждой скважины на формирование понижения в скважине 2 и время наступления квазистационарного режима от влияния каждой скважины. Вычисления сводим в таблицу 1
Таблица 1
Для t= 1сут согласно таблице 1 ,учитывается влияние скважины 1, однако ее режим неустановившийся:
S0
= 
S0
=
Для t=3 сут, согласно таблице 1, учитывается влияние скважины 1 и скважины 2/
, но режим неустановившийся. С учетом того что имеем расчетную схему в виде реки (Н=const), то отображенная скважина задается как нагнетательная (-Q0
),тогда:
S0
= 
S0
= 2.27 м
Для t= 10 сут учитывается влияние скважин 1 , 1/
,и 2/
, но режим неустановившийся:
S0
= 
S0
= =2.38 м
Для t=100 сут учитывается влияние всех скважин при этом режим во всех скважинах квазистационарный , тогда:


Расчет для t=500 суток аналогичен расчету при t=100сут так как режим квазистационарный, а центральная скважина еще раньше выходит на стационарный режим, что связано с границей постоянного напора.
Сервис онлайн-записи на собственном Telegram-боте
Попробуйте сервис онлайн-записи VisitTime на основе вашего собственного Telegram-бота:
— Разгрузит мастера, специалиста или компанию;
— Позволит гибко управлять расписанием и загрузкой;
— Разошлет оповещения о новых услугах или акциях;
— Позволит принять оплату на карту/кошелек/счет;
— Позволит записываться на групповые и персональные посещения;
— Поможет получить от клиента отзывы о визите к вам;
— Включает в себя сервис чаевых.
Для новых пользователей первый месяц бесплатно.
Зарегистрироваться в сервисе
Отразим полученные результаты расчетов на графике и убедимся, что график для схемы неограниченного пласта является медианным по отношению к схемам полуоткрытого и полузакрытого пласта.

Задача 4
Водозабор из двух скважин работает в напорном, неограниченном в плане пласте известняков с К= 25 м/сут, мощностью m=30 м ,упругой водоотдачей 10-4
. Остаточный напор на начало эксплуатации Н=20 м . Расходы скважин изменяются во времени. Первые t1
=700 сут , 1 скв эксплуатируется с расходом м3
/сут, а скв 2- м3
/сут; затем 2000 м3
/сут; м3
/сут. Скважины расположены на расстоянии 2 друг от друга. Скважины совершенные по степени вскрытия пласта, r0
=0.1м.
Определить понижение уровня в СКВ 2 спустя t=1500 сут после начала работы этой скважины.
Решение:
График изменения дебита взаимодействующих водозаборных скважин

Определим величину пьезопроводности пласта:
а#
= м2
/сут
Найдем время наступления квазистационарного режима по формуле:


Т.е к расчетному периоду, режим можно считать квазистационарным и используя формулы имеем:
S2
=
S2
=
Т.е меньше остаточного напора.
Задача 5
Водозаборный ряд из n = 10 скважин эксплуатирует с суммарным расходом Qсум
= 20000 м /сут грунтовые воды в долине реки с совершенным врезом. Водоносный горизонт приурочен к аллювиальным пескам. Мощность обводненной толщи hе
= 40 м, коэффициент фильтрации k=20 м/сут, водоотдача μ= 0,2. Расстояние между скважинами в ряду составляет 2σ=200м. Оценить время наступления стационарного режима фильтрации. Определить понижение уровня в центральной скважине, радиус фильтра которой ro
=0,1м. Скважина совершенная. Рассмотреть два варианта размещения водозабора относительно реки: параллельно урезу на расстоянии L1
=300м и L2
= 1200м от него.
Решение:

1 Определяем величину коэффициента уровнепроводности
а= =
Время наступления стационарного режима фильтрации для обоих вариантов размещения водозабора составит:
по первому варианту
tc
= = сут,
по второму варианту
tc
= =3600сут.
2. Определяем величину понижения уровня в скважине водозабора при его размещении в L1
=300 м от уреза реки. Учитывая, что длина ряда 2l=2σ·n=200·10=2000 м и L1
<l, воспользуемся формулой (7.15)

Так как S<0,25hе
(6.1<10,0), данное решение не подлежит корректировке.
3. Определяем величину понижения уровня в скважине водозабора при ее размещении на расстоянии L2
=1200 м от уреза реки. Учитывая что, L2
> l , можем воспользоваться методом обобщенных систем, используя формулы:
S=Sw
+ΔSСКВ
;
Sw
= ;
ΔSСКВ
= ;
Rw
=
rn
=
Отметим, что полученное решение будет справедливо для периода эксплуатации водозабора, превышающего время наступления стационарного режима, т.е. tпрог
>3600 сут. Предварительно схематизируем пласт как неограниченный, принимая Rk
= 2L, тогда Rотобр
=0.
Sw
=
ΔSСКВ
=
Суммируя получим:
S= 8.63 м
Так как S> 0,25hе
, переходим к расчету для грунтовых вод, составляя квадратное уравнение:
2*mSн
=(2he
-S)*S
2*40*8.36=2*40S-S2
; S2
-80S+668.8=0;
откуда определяем понижение в грунтовых водах:
S=40- =9.48 м.
Задача 6
Песчаный карьер имеет размеры b х L равные 600 х 1200 м. По контуру карьера пробурены скважины с шагом 2σ =300 м, из которых осуществляется водоотбор с целью водопонижения с расходом Qо
=1200м3
/сутиз каждой скважины. Водоносный горизонт заключен в песках и имеет мощность hе
=40м. Коэффициент фильтрации песков k=10 м/сут, водоотдача μ=0,1. Определить величину понижения уровня под карьером и в скважинах, имеющих радиус фильтра ro
=0,1м. Скважины совершенные. Продолжительность разработки карьера t=5 лет.
Решение:

1. Определим количество скважин по контуру карьера:
n=
Суммарный водоотбор равен:
Qсум
=n*Q0
=12*1200=14400 м3
/сут
2. Величина коэффициента уровнепроводности пласта:
а= м2
/сут
Проверяем условии:

R0
= =479 м.
что меньше расчетного срока в 1825 сут.
Это означает наступление квазистационарного режима фильтрации к этому времени по всему водозабору, что позволяет использовать для его расчета метод обобщенных систем.
4. Так как режим фильтрации квазистационарный, определим величину понижения уровня под карьером по формулам:
Sw
= ;
Rw
= ;
rпр
=R0
;
Sw
=
Дополнительное понижение в скважинах определим по формулам:
ΔSСКВ
= ;
rn
=
ΔSСКВ
= ;
Общее понижение в скважине равно:
S=Sw
+ ΔSСКВ
=12.26+1.48=13.74 м.
Так как S>0.25he
, то переходим к расчету для грунтовых вод:
(2he
-S)S=2*40*13.74; S2
-80S+1099.2=0;
S=40- =17.6м.
|