Пояснительная записка к курсовому проекту
на тему:
«Расчет на прочность крыла большого
удлинения и шасси транспортного самолета АН–148»
Харьков 2011 г.
Общие сведенья о самолёте
Задание
Геометрические данные крыла
Определение нагрузок на крыло
Распределение воздушной нагрузки по длине крыла
Распределение массовой нагрузки по конструкции крыла
Построение эпюр поперечных сил, изгибающих и приведенных моментов
Проектировочный расчет сечения крыла
Подбор продольного силового набора в растянутой зоне
Подбор продольного силового набора в сжатой зоне
Подбор толщин стенок лонжеронов
Определение расстояния между нервюрами
Проверочный расчет крыла
Проверочный расчет на касательные напряжения
Расчет центра жесткости сечения крыла
Заключение о прочности крыла
Проектировочный расчет стоек шасси
Исходные данные
Подбор колес
Определение параметров амортизатора
Определение нагрузок на стойку
Построение эпюр изгибающих моментов
Подбор параметров поперечного сечения элементов
Построение эпюры осевой силы
Проверочный расчет штока
Проверочный расчет цилиндра
Заключение о прочности шасси
Расчет оси колеса на ресурс
Приложение 1
Приложение 2
1. Рассчитать на прочность крыло большого удлинения транспортного самолета: определить геометрические параметры и весовые данные крыла; определить нагрузки и построить эпюры поперечных сил, изгибающих и приведенных моментов по длине крыла; провести проектировочный и проверочный расчет поперечного сечения крыла.
За прототип принять пассажирский самолёт АН-148.
Взлетная масса самолета .
Расчетный случай А.
Коэффициент максимальной эксплутационной перегрузки для неманевренного пассажирского самолета, согласно НЛГС, , коэффициент безопасности .
Общие сведения о самолёте-прототипе
АН-148

Базовым вариантом является региональный самолет Ан-148-100, обеспечивающий перевозку в одноклассной компоновке от 70 пассажиров с шагом кресел 864 мм (34‘’) до 80 пассажиров с шагом кресел 762 мм (30‘’). С целью обеспечения гибкости удовлетворения требований различных авиакомпаний, а также с целью снижения эксплуатационных затрат и повышения рентабельности перевозок предусматривается сертификация базового самолета в вариантах с максимальной дальностью полета от 2200 до 5100 км. Крейсерская скорость полета 820-870 км/ч. Проведенные маркетинговые исследования показали, что базовый самолет по своим технико-экономическим характеристикам отвечает требованиям большого количества авиакомпаний.
Самолет Ан-148-100 выполнен по схеме высокоплана с двигателями Д-436-148, размещенными на пилонах под крылом. Это позволяет повысить уровень защищенности двигателей и конструкции крыла от повреждений посторонними предметами. Наличие вспомогательной силовой установки, бортовой системы регистрации состояния самолета, а также высокий уровень эксплуатабельности и надежности систем позволяют использовать Ан-148-100 на сети технически слабооснащенных аэродромов.
Современное пилотажно-навигационное и радиосвязное оборудование, применение многофункциональных индикаторов, электродистанционных систем управления полетом самолета позволяют использовать Ан-148-100 на любых воздушных трассах, в простых и сложных метеоусловиях, днем и ночью, в том числе на маршрутах с высокой интенсивностью полетов при высоком уровне комфорта для экипажа.
Забиваем Сайты В ТОП КУВАЛДОЙ - Уникальные возможности от SeoHammer
Каждая ссылка анализируется по трем пакетам оценки: SEO, Трафик и SMM.
SeoHammer делает продвижение сайта прозрачным и простым занятием.
Ссылки, вечные ссылки, статьи, упоминания, пресс-релизы - используйте по максимуму потенциал SeoHammer для продвижения вашего сайта.
Что умеет делать SeoHammer
— Продвижение в один клик, интеллектуальный подбор запросов, покупка самых лучших ссылок с высокой степенью качества у лучших бирж ссылок.
— Регулярная проверка качества ссылок по более чем 100 показателям и ежедневный пересчет показателей качества проекта.
— Все известные форматы ссылок: арендные ссылки, вечные ссылки, публикации (упоминания, мнения, отзывы, статьи, пресс-релизы).
— SeoHammer покажет, где рост или падение, а также запросы, на которые нужно обратить внимание.
SeoHammer еще предоставляет технологию Буст, она ускоряет продвижение в десятки раз,
а первые результаты появляются уже в течение первых 7 дней.
Зарегистрироваться и Начать продвижение
Комфорт пассажирам обеспечивается на уровне комфорта на магистральных самолетах и достигнут рациональной компоновкой и составом сервисных помещений, глубокой эргономической оптимизацией общего и индивидуального пространства пассажирского салона, применением современных кресел, дизайна и материалов интерьера, а также созданием комфортных климатических условий и низкого уровня шума. Рационально выбранная длина пассажирского салона и размещение пассажиров в ряду по схеме 2+3 позволяют силами эксплуатанта получить различные одноклассные и смешанные компоновки в диапазоне 55-80 пассажиров с салонами экономического, бизнес и первого класса. Высокая степень преемственности конструктивно-технологических решений и эксплуатационной унификации Ан-148-100 с успешно эксплуатируемыми самолетами «Ан», использованием «Hi-Tech» компонентов оборудования и систем отечественного и зарубежного производств обеспечивают самолету Ан-148-100 высокий конкурентный уровень экономической эффективности, технического и эксплуатационного совершенства.
Техническое обслуживание самолета Ан-148-100 основано на удовлетворении требований международных стандартов (ICAO, MSG-3) и обеспечивает поддержание летной годности самолета в пределах жизненного цикла эксплуатации по состоянию с интенсивностью до 300 ч в месяц с коэффициентом готовности более 99,4%, при минимизации затрат на ТО (1,3 чел-ч на 1 час налета).
Семейство самолетов Ан-148 также включает следующие модификации:
пассажирский самолет, обеспечивающий перевозку 40-55 пассажиров на дальность до 7000 км; административный на 10 – 30 пасс. с дальностью до 8700 км;
грузовой вариант с боковой грузовой дверью для перевозок генеральных грузов на поддонах и в контейнерах;
грузо-пассажирский вариант для смешанных перевозок «пассажиры + груз».
Принципиальной особенностью создания семейства Ан-148 является использование максимальной унификации и преемственности агрегатов и компонентов базового самолета – крыла, оперения, фюзеляжа, силовой установки, пассажирского и самолетного оборудования.
Расчет крыла большого удлинения

–площадь стреловидного крыла;
- удлинение стреловидного крыла;
- размах стреловидного крыла;
- сужение стреловидного крыла;
- корневая хорда крыла;
- концевая хорда крыла;
- угол стреловидности крыла по передней кромке.
Так как крыло данного самолета стреловидное и угол по передней кромке более 15° (рис. 1), вводим эквивалентное равновеликое по площади прямое крыло, и все расчеты проводим для этого эквивалентного крыла. Прямое крыло введем путем поворота стреловидного так, чтобы прямая проходящая по половине хорды прямого крыла была перпендикулярна оси фюзеляжа (рис. 2). При этом размах спрямленного крыла
Сервис онлайн-записи на собственном Telegram-боте
Попробуйте сервис онлайн-записи VisitTime на основе вашего собственного Telegram-бота:
— Разгрузит мастера, специалиста или компанию;
— Позволит гибко управлять расписанием и загрузкой;
— Разошлет оповещения о новых услугах или акциях;
— Позволит принять оплату на карту/кошелек/счет;
— Позволит записываться на групповые и персональные посещения;
— Поможет получить от клиента отзывы о визите к вам;
— Включает в себя сервис чаевых.
Для новых пользователей первый месяц бесплатно.
Зарегистрироваться в сервисе
.
 
Площадь спрямленного крыла:
,
причем в качестве параметра примем значение, равное расстоянию от конца консоли спрямленного крыла до оси самолёта, так как схема данного самолета – высокоплан (рис. 3)
. Тогда .
Найдем относительную координату линии центров давления. Для этого определим коэффициент подъемной силы для расчетного случая А.
- взлетный вес данного самолета;
- плотность воздуха на высоте Н = 0 км;
- крейсерская скорость самолета ( [ ] = кг ),
- скорость пикирования,
,
.
Тогда: Сх
= 0,013; Сд
= 0,339; α0
= 2о
Лонжероны в крыле располагаем:
-передний лонжерон на расстоянии 15% хорды от носка крыла;
-задний лонжерон на расстоянии 75% хорды от носка крыла (рис. 5).
В расчетном сечении ( ) высота переднего лонжерона , заднего- .

На крыло воздействуют распределенные по поверхности воздушные силы и массовые силы от конструкции крыла и от помещаемого в крыле топлива, сосредоточенные силы от массы агрегатов, расположенных на крыле.
Массы агрегатов находим через их относительные массы от взлетной массы самолета:
- масса крыла;
- масса силовой установки;
Так как на самолёте 2 двигателя, то массу одного двигателя примем равной
.
По длине крыла нагрузка распределяется по закону относительной циркуляции:
,
где - относительная циркуляция,
.
В случае стреловидного крыла относительная циркуляция определяется по формуле:
, где — влияние стреловидности крыла, ( - угол стреловидности по четверти хорды).
Таблица – Распределение воздушной нагрузки по консоли крыла
| zотн |
0 |
0,1 |
0,2 |
0,3 |
0,4 |
0,5 |
0,6 |
0,7 |
0,8 |
0,9 |
1 |
| Г45 |
-0,235 |
-0,175 |
-0,123 |
-0,072 |
-0,025 |
0,025 |
0,073 |
0,111 |
0,135 |
0,14 |
0 |
| Г пл |
1,3859 |
1,3701 |
1,3245 |
1,2524 |
1,1601 |
1,0543 |
0,9419 |
0,8271 |
0,7051 |
0,5434 |
0 |
| Г |
1,27404 |
1,2868 |
1,265952 |
1,218128 |
1,1482 |
1,0662 |
0,976648 |
0,879936 |
0,76936 |
0,61004 |
0 |
| qв,H/м |
36430,7 |
36795,5 |
36199,4 |
34831,9 |
32832,3 |
30487,6 |
27926,9 |
25161,4 |
21999,5 |
17443,9 |
0,0 |
В приближенных расчетах можно считать, что погонная нагрузка массовых сил крыла пропорциональна хордам. Следовательно, для расчетов можно пользоваться формулой:
, где - хорда крыла.
Массовую нагрузку от веса топлива распределяем пропорционально площадям поперечного сечения топливных баков
, где - удельный вес топлива.
где - вес топлива (для самолёта АН 148 ).
Суммарная погонная нагрузка на крыло находится по формуле:
.
Начало координат поместим в корне крыла, сечения нумеруем от корня в направлении конца крыла, начиная с .
Результаты расчетов заносим в таблицу .
Таблица
 |
z, м |
b(z), м |
 |
 |
 |
, кг/м |
, кг/м |
, кг/м |
, кг/м |
| 0 |
0 |
4,93 |
1,3435 |
-0,060421 |
1,283079 |
4048,02 |
505,33 |
2187,441 |
1355,25 |
| 0,1 |
1,462 |
4,559 |
1,3298 |
-0,044994 |
1,284806 |
4053,46 |
467,30 |
1870,603 |
1715,56 |
| 0,2 |
2,924 |
4,188 |
1,2908 |
-0,031625 |
1,259175 |
3972,60 |
429,27 |
1578,541 |
1964,79 |
| 0,2 |
2,924 |
4,188 |
1,2908 |
-0,031625 |
1,259175 |
3972,60 |
429,27 |
0 |
3543,33 |
| 0,3 |
4,386 |
3,817 |
1,2228 |
-0,018512 |
1,204288 |
3799,44 |
391,24 |
0 |
3408,20 |
| 0,4 |
5,848 |
3,446 |
1,1484 |
1,141972 |
3602,84 |
353,22 |
0 |
3249,62 |
| 0,4 |
5,848 |
3,446 |
1,1484 |
1,141972 |
3602,84 |
353,22 |
1068,742 |
2180,88 |
| 0,5 |
7,31 |
3,075 |
1,057 |
0,006428 |
1,063428 |
3355,03 |
315,19 |
851,0063 |
2188,84 |
| 0,6 |
8,772 |
2,704 |
0,9571 |
0,018769 |
0,975869 |
3078,79 |
277,16 |
658,0454 |
2143,59 |
| 0,7 |
10,234 |
2,333 |
0,8538 |
0,028539 |
0,882339 |
2783,71 |
239,13 |
489,86 |
2054,72 |
| 0,8 |
11,696 |
1,962 |
0,743 |
0,03471 |
0,77771 |
2453,62 |
201,11 |
346,45 |
1906,06 |
| 0,9 |
13,158 |
1,591 |
0,6091 |
0,035996 |
0,645096 |
2035,23 |
163,08 |
227,8153 |
1644,34 |
| 0,95 |
13,889 |
1,4055 |
0,4593 |
0,032139 |
0,491439 |
1550,45 |
144,06 |
177,7887 |
1228,60 |
| 1 |
14,62 |
1,22 |
0 |
0 |
0 |
0,00 |
0,00 |
0 |
0 |
Строим эпюры функций , и (рис. 7)

Рис. 7
Суммарная погонная нагрузка на крыло :

Построение эпюр поперечных сил, изгибающих и приведенных моментов.
При определении закона распределения поперечных сил и изгибающих моментов по длине крыла вначале находим функции и от воздействия распределенной нагрузки . Для этого табличным способом вычисляем интегралы методом трапеций.
, ,
Расчет производим по следующим формулам:
;
; ,
, .
Аналогично рассчитываем величины изгибающих моментов:
; ;
, 
Полученные результаты заносим в таблицу 2.
Таблица 2
 |
z,м |
ΔQ, кг |
Q, кг |
ΔM, кгм |
M, кгм |
| 0 |
0 |
2244,77 |
20592,41 |
196758,3 |
1016728 |
| 0,1 |
1,462 |
2690,34 |
18347,64 |
172115,8 |
819969,8 |
| 0,2 |
2,924 |
2969,13 |
15657,30 |
152033,9 |
647854 |
| 0,3 |
4,386 |
3127,09 |
12688,17 |
130883,4 |
495820,1 |
| 0,4 |
5,848 |
3194,27 |
53414,20 |
121865,8 |
364936,7 |
| 0,5 |
7,31 |
3167,01 |
43712,46 |
87477,02 |
243070,9 |
| 0,6 |
8,772 |
3068,96 |
34081,88 |
66035,43 |
155593,9 |
| 0,7 |
10,234 |
2895,33 |
24644,21 |
57833,87 |
89558,46 |
| 0,8 |
11,696 |
2595,34 |
15538,14 |
24598,34 |
31724,59 |
| 0,9 |
13,158 |
1602,68 |
6337,4565 |
7126,248 |
7126,248 |
| 1 |
14,62 |
0 |
0 |
0 |
0 |
Необходимо учесть воздействие сосредоточенных массовых сил :
(кг);
, ;
,

Построим эпюры , (рис. 8)


Рис. 8
При построении эпюры приведенных моментов вначале задаемся положением оси приведения. Она проходит через переднюю кромку крыла параллельно оси “z” Строим эпюру погонных моментов от воздействия распределенных нагрузок , и .
Для погонных моментов:
,
где
, тогда
.
- расстояния от точек приложения нагрузок до оси приведения.
, 


.
Момент считаем положительным, если он действует против часовой стрелки.
Интегрируя эпюру , получаем приведенные моменты от воздействия распределенных нагрузок. Схема расчета имеет вид:
;
.
Полученные результаты заносим в таблицу 3:
Таблица 3
| qv |
qkr |
qt |
av |
akr |
at |
mz |
dM |
M |
| 4027,11 |
502,72 |
2187,44 |
1,67127 |
2,2185 |
2,3664 |
438,75654 |
42399,48 |
| 4032,53 |
464,88 |
1870,60 |
1,69219 |
2,1982393 |
2,335009 |
1434,007 |
1368,9901 |
41030,49 |
| 3952,09 |
427,05 |
1578,54 |
1,713111 |
2,1779786 |
2,303619 |
2203,8936 |
2659,3053 |
38371,18 |
| 5840,2499 |
| 3779,82 |
389,22 |
1311,25 |
1,734031 |
2,1577179 |
2,272228 |
6371,3749 |
3610,3448 |
34760,84 |
| 3584,23 |
351,39 |
1068,74 |
1,754951 |
2,1374572 |
2,240837 |
6780,5438 |
4297,6997 |
30463,14 |
| 3144,1876 |
| 3337,71 |
313,56 |
851,01 |
1,775871 |
2,1171965 |
2,209446 |
3383,2196 |
4771,5346 |
25691,6 |
| 3062,89 |
275,73 |
658,05 |
1,796792 |
2,0969357 |
2,178056 |
3491,9366 |
5025,7392 |
20665,86 |
| 2769,34 |
237,90 |
489,86 |
1,817712 |
2,076675 |
2,146665 |
3488,2576 |
5102,522 |
15563,34 |
| 2440,94 |
200,07 |
346,45 |
1,838632 |
2,0564143 |
2,115274 |
3343,7442 |
4994,1933 |
10569,15 |
| 2024,72 |
162,24 |
227,82 |
1,859553 |
2,0361536 |
2,083884 |
2959,9915 |
4608,0307 |
5961,119 |
| 1542,45 |
143,32 |
177,79 |
1,870013 |
2,0260233 |
2,068188 |
2226,3231 |
3791,1959 |
2169,923 |
| 0,00 |
0,00 |
0,00 |
1,880473 |
2,0158929 |
2,052493 |
0 |
2169,9229 |
0 |
Приведенный момент от воздействия сосредоточенных масс находим по формуле:
,
где - расстояние от цеyнтра тяжести -того бака до оси приведения.

Строим суммарную эпюру (рис. 9)


Рис. 9
Проверка правильности построения эпюр нагрузок по крылу.


С эпюры =20592кг.
Определение точки положения поперечной силы в расчетном сечении
Зная поперечную силу и приведенный момент в расчетном сечении( =0.2), можно найти точку приложения поперечной силы по хорде крыла расчетного сечения:

Координату откладывают от оси приведения.
Проектировочный расчет сечения крыла
В проектировочном расчете необходимо подобрать силовые элементы поперечного сечения крыла: лонжероны, стрингеры и обшивку. Подберем материалы для продольных элементов сечения крыла и занесем их механические характеристики в таблицу 4.
Таблица 4

Шаг стрингеров находят из условия получения волнистости поверхности крыла не выше определенного значения. Величина должна удовлетворять неравенству
.
Здесь и – давление в горизонтальном полете на нижней и верхней поверхностях крыла;
– коэффициент Пуансона, для дюраля ;
– модуль упругости первого рода материала обшивки.
Приближенно величины и считаем равными
,
.
Параметр является относительным прогибом, рекомендуемое значение которого не более .
Задаваясь шагом стрингеров, найдём толщину обшивки, удовлетворяя неравенство (табл. 5).
Таблица 5.

По соображениям прочности увеличим толщину обшивки, приняв
δсж
= 5(мм), δр
= 4(мм), 
Определим количество стрингеров на верхней и на нижней частях поперечного сечения: . (рис. 10)

Рис. 10
Нагрузки, воспринимаемые панелями будут равны

где

Нагрузка, воспринимаемая панелью может быть представлена


Подбор продольного силового набора в растянутой зоне
Усилие в растянутой зоне определяется равенством
,
где – количество стрингеров в растянутой зоне, учитываемое в проектировочном расчете,
– площадь поперечного сечения одного стрингера,
– толщина обшивки в растянутой зоне.
Так как панель цельнофрезерованная:
– коэффициент, учитывающий концентрацию напряжений и ослабление сечения отверстиями под заклепки или болты,
– коэффициент, учитывающий запаздывание включения в силовую схему обшивки по сравнению со стрингерами, .

Тогда найдем потребную площадь стрингеров в растянутой панели: рис. 11

Зная потребную площадь стрингера, из сортамента профилей [1, приложение 4] выберем стрингер с близкой площадью поперечного сечения. Выбираем угольник равностенный ПР100-22, , , (рис 11).
Определим площади поясов лонжерона

Площадь следует распределить между растянутыми полками переднего и заднего лонжеронов.
, ,
Отсюда

.
Усилие в сжатой зоне находят по формуле:
,
где – количество стрингеров в сжатой зоне, учитываемое в проектировочном расчете,

– расчетное разрушающее напряжение стрингера в сжатой зоне,
– площадь поперечного сечения одного стрингера в сжатой зоне,
Присоединенную площадь обшивки определим по формуле:
.
Тогда потребная площадь стрингера:
.
Зная потребную площадь стрингера, из сортамента профилей [1, приложение 4] выберем стрингер с близкой площадью поперечного сечения (Рис. 12). Это бульбоугольник ПР102-23, , , . Рис. 12
Критические напряжения местной потери устойчивости выбранного стрингера определим по формуле:
,
- коэффициент, учитывающий условия закрепления граней стенки.
Стрингеры на местную устойчивость проверим для всех стенок стрингера, кроме приклепываемых к обшивке.
для полки стрингера:
.
Так как > , их необходимо скорректировать по формулам:
, , ,
.
Ширину присоединенной обшивки, работающей с напряжениями стрингера, определим:
.
Площадь присоединенной обшивки:
.
Суммарная площадь полок лонжеронов:

Распределим площадь между сжатыми полками переднего и заднего лонжеронов пропорционально квадратам их высот:
,
.
Примем отношение ширины полки лонжерона к ее толщине , тогда
1лонжерон:
, ; , ;
2лонжерон:
, ; , .
Для приближенного расчета можно считать, что центр жесткости поперечного сечения лежит в центре тяжести жесткостей лонжеронов на изгиб.
Определим моменты инерции лонжеронов.
,


 ,
 
Перенося поперечную силу со статическим нулем в центр жесткости, замечаем, что эта сила эквивалентна двум силам:
,

и крутящему моменту

Эти силы вызывают потоки касательных усилий в стенках лонжеронов (рис. 13) .



Рис. 13
Если предположить, что крутящий момент воспринимается только внешним контуром сечения крыла, то этот момент уравновешивается потоком касательных усилий

Тогда в зависимости от расположения поперечной силы (до или после центра жесткости)
.


Найдем толщину стенки:

Примем

Тогда
, ,
. .
Определение расстояния между нервюрами
Расстояние между нервюрами определяется из условия равнопрочности при местной потере устойчивости стрингера и при общей потере устойчивости стрингера с присоединенной обшивкой.
Критические напряжения потери устойчивости стрингера определяются по формуле:
,
где – момент инерции сечения стрингера с присоединенной обшивкой относительно оси, проходящей через центр тяжести этого сечения и параллельной плоскости обшивки;
– расстояние между нервюрами.
,

Тогда
.
Целью проверочного расчета является проверка прочности конструкции при действительной геометрии и физико-механических характеристиках материалов конструкции методом редукционных коэффициентов.
Для определения коэффициента редукции нулевого приближения построим диаграмму деформирования материалов обшивки, стрингеров и лонжеронов. Параметры деформирования приведены в таблице 4.
Имея диаграмму деформирования, выбираем фиктивный физический закон. При расчетных нагрузках напряжения в наиболее прочном элементе конструкции - лонжероне - близки к временному сопротивлению. Поэтому фиктивный физический закон целесообразно проводить через точку (рис. 14).

Рис. 14
Определяем коэффициент редукции нулевого приближения в сжатой зоне
:
Лонжерон
: ,
Стрингер:
.
Определяем коэффициент редукции нулевого приближения в растянутой
зоне
:
Лонжерон:
,
Стрингер:
.
Определим редуцированные площади элементов. Действительные площади элементов сечения:
,
,
;
,
,
.
Редуцированные площади:
,
,
;
,
,
.
Дальнейшие расчеты представлены в таблице 6.
Далее необходимо найти координаты центра тяжести редуцированного сечения. Определяем положение центральных осей редуцированного сечения. Исходные оси выбираем проходящими через носок профиля в соответствии с его геометрией (рис. 15).
Координаты центра тяжести редуцированного сечения определяем следующим образом:
,
,

Рис. 15
где - число сосредоточенных площадей в сечении.
Координаты сосредоточенных элементов в центральных осях найдем так:
,
. (табл. 6)
Определяем осевые и центробежные моменты инерции редуцированного сечения в центральных осях:

,
.
Далее необходимо найти угол поворота центральных осей до положения главных (рис. 16). Рис. 16

Вычислим координаты элементов в главных центральных осях
,
. (табл 6)
Определяем моменты инерции в главных центральных осях
,
.
Определяем проекции изгибающих моментов на главные центральные оси (рис. 17):
;
.
Определяем редуцированные напряжения в элементах сечения:


Рис. 17
Определяем действительные напряжения в продольных элементах из условия равенства деформации действительных и редуцированных сечений по диаграмме деформирования (рис. 18).

Рис. 18
После нахождения действительных напряжений определяем коэффициент редукции последующего приближения для каждого элемента конструкции:

Определение коэффициентов редукции последующих приближений для каждого элемента конструкции будет проведено с помощью ЭВМ. (приложение 1)
После достижения сходимости коэффициентов редукции необходимо определить коэффициенты избытка прочности в элементах:
- в растянутой зоне, - в сжатой зоне.
Таблица 5

Таблица 5 (продолжение)

Оценим прочность обшивки модифицированного сечения. Обшивка находится в плоском напряженном состоянии. В ней действуют касательные напряжения, значения которых получены на основе расчета на ЭВМ:
,
и нормальные напряжения , которые равны .(табл. 7)
Определим критическое напряжение потери устойчивости обшивки:
,
где ,
- расстояние между нервюрами, - шаг стрингеров.
Если обшивка теряет устойчивость от сдвига ( ) и работает как диагонально – растянутое поле (рис. 19), то в ней возникают дополнительные растягивающие нормальные напряжения, определяемые по формуле:
,
,
где – угол наклона диагональных волн.

Рис. 19
Таким образом, напряженное состояние в точках обшивки расположенных вблизи стрингеров, определяем по формулам:
При При 
, ,
 ,
. .
Условие прочности, соответствующее критерию энергии формообразования, имеет вид:
,
где
.
Коэффициент , характеризующий избыток прочности обшивки определяем по формуле:
.
Полученные результаты заносим в таблицу 7.
Строим эпюру касательных напряжений (рис. 20)

рис.
Таблица 7

Центр жесткости – это точка, относительно которой происходит закручивание контура поперечного сечения, либо это точка, при приложении поперечной силы в которой закручивание контура не происходит. В соответствии с этими двумя определениями существуют 2 метода расчета положения центра жесткости: метод фиктивной силы метод фиктивного момента. Так как проверочный расчет на касательные напряжения проведен, и эпюра суммарных ПКУ построена, то для расчета центра жесткости сечения используем метод фиктивного момента.
Определяем относительный угол закручивания 1го
контура. Эпюра qS
- известна.


В соответствии с формулой Мора к первому контуру прикладываем единичный момент:


Тогда: .
Так как обшивка самостоятельно не работает на нормальные напряжения, эпюра меняется скачком на каждом продольном элементе, оставаясь постоянной между элементами, то от интеграла перейдем к сумме

Определяем относительный угол закручивания сечения крыла при приложении к нему момента М = 1 ко всему контуру. Неизвестными являются q01
q02
, для их определения запишем два уравнения: уравнение равновесия относительно т.А (нижний пояс переднего лонжерона) и уравнение равенства относительных углов закручивания первого и второго контуров (аналог ур-я совместности деформации).
 

где - удвоенные площади контуров.

Для расчета относительных углов воспользуемся формулой Мора. Прикладывая к каждому контуру единичный момент





Таким образом, уравнения для расчета неизвестных и примут вид

Решая которые, находим

После нахождения `М1
и`М2
, определяем относительный угол закручивания первого контура, от приложения к сечению единичного момента:

Определяем величину крутящего момента в сечении крыла от действующих нагрузок. Поскольку деформирование линейно, угол закручивания прямо пропорционален величине Мкр
, тогда:

кНм.
Определяем расстояние от поперечной силы до центра жесткости (рис. 21).
 м.

Рис. 21
Исследуя коэффициенты избытка прочности, можно прийти к выводу, что конструкция прочна по всем продольным элементам в сжатой и растянутой зонах и в обшивке, так как величина >1, причем запас прочности составляет:
- для стрингерного набора 10 - 15%,
- для обшивки 3 – 10%.
На некоторых участках обшивка немного перегружена.
Пояса лонжеронов значительно недогружены.
Проектировочный расчет стоек шасси
Взлетная масса самолета mвзл
=130000 кг;
Посадочная масса самолета mпос
= 80000 кг;
Количество основных стоек ;
Количество колес на основной стойке ;
Количество амортизаторов на стойке ;
Геометрические параметры: .
Подбор колёс начинаем с выбора типа пневматика. Тип выбираем с учётом условий эксплуатации и значений посадочной и взлетноё скоростей. Так как самолёт эксплуатируется на грунтовых ВПП, то используют пневматики низкого давления.
Далее определяем величину стояночной нагрузки для взлетной и посадочной массы самолёта:
кН;
кН.
По полученным данным из сортамента авиационных колес [2] выбираем колесо КТ-88 с характеристиками:
кН кН
кН - предельная радиальная нагрузка на колесо;
кН - максимально допустимая нагрузка на колесо;
мм - обжатие пневматика при максимально допустимой нагрузке;
кДж - работа, поглощаемая пневматиком при его обжатии на величину δмд
;
кПа - рабочее давление в пневматике.
Так как , то пересчитаем характеристики колеса по формулам:
кПа
кН
мм
При этом удовлетворяются условия:

Коэффициент грузоподъемности колеса
.
Для коэффициента перегрузки принимаем значение
;
.
Тогда получим эксплуатационные нагрузки на колесо
кН;
кН.
Так как стойка содержит спаренные колёса, то более нагруженное колесо воспринимает усилие
кН < 
Определение параметров амортизатора
Эксплуатационная работа, поглощаемая амортизационной системой при посадке:
,
где - эксплуатационная вертикальная посадочная скорость, равная
м/с.
Но так как , то принимаем м/с.
Тогда
кДж.
Одна стойка воспринимает эксплуатационную работу
кДж.
Вычислив эксплуатационную работу, поглощенную пневматиками при посадке
кДж,
найдем работу воспринимаемую амортизатором
кДж.
Ход амортизатора вычисляем по формуле
м;
- коэффициент полноты диаграммы обжатия амортизатора при восприятии работы .
φэ
- передаточное число при ходе поршня Sэ
.
Так как рассматривается телескопическая стойка и при этом предполагается, что в момент касания колесами земли ось стойки перпендикулярна поверхности земли, то ηе
=0,7 и φэ
=1.
Для определения поперечных размеров амортизатора находим из равенства

площадь, по которой газ воздействует на шток амортизатора.
Зададимся значениями параметров:
МПа – начальное давление газа в амортизаторе;
– коэффициент предварительной затяжки амортизатора;
– передаточное число в момент начала обжатия амортизатора;
тогда
м2
.
Для амортизатора с уплотнением, закрепленным на цилиндре, внешний диаметр штока равен величине:
м.
Толщину уплотнительных колец полагаем .Тогда для внутреннего диаметра цилиндра
м.
Начальный объем V0
газовой камеры находим по формуле

Высота газовой камеры при необжатом амортизаторе
м.
Параметры и находим по следующему алгоритму.
Для нахождения неизвестных и используем уравнения
1
2
3
После некоторых преобразований
4
Здесь - передаточное число соответствующее ходу амортизатора 
- коэффициент полноты диаграммы обжатия амортизатора при поглощении работы . Для телескопических стоек .
Первое из равенств (3) имеет вид квадратного уравнения
, 5
где , 6
7
из равенства (5)
8
Подставляя из (8) во второе уравнение (3) получаем трансцендентное уравнение
,
корень которого есть искомая величина .
Вычисления сведены в табл. 8
Таблица 8.

Строим график в координатной системе ( Smax
, f) (рис. 22).

Рис. 22
Точка пересечения кривой с осью f = 0 дает значение Smax
=0,55.
Из зависимости (8) найдём
.
Давление газа в амортизаторе при его максимальном обжатии
МПа.
Высота уровня жидкости над верхней буксой
м.
При этом:

0,589 + 0,1045 = 0,6935 > 0,55 – условие выполняеться.
Задаваясь значениями параметров:
м - конструктивный ход амортизатора;
м - суммарная высота букс;
м - опорная база штока;
м - суммарный размер узлов крепления амортизатора;
получаем длину амортизатора в необжатом состоянии
м.
Длина амортизатора при эксплуатационном обжатии
м.
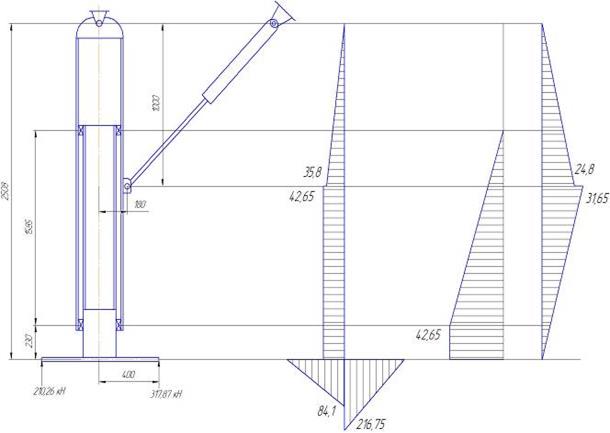
Определение нагрузок на стойку
Коэффициент расчетной перегрузки:
.
Расчетная вертикальная и горизонтальная нагрузки на стойку равны:
кН;
кН.
Между колесами усилие распределяется в соотношении 316,87 : 210,36, а усилие - 79,22 : 52,81.
Стойка является комбинированной системой. Вначале методом сечений находим усилие в подкосе. Записываем для стойки уравнение равновесия относительно шарнира
 кН
Эпюра изгибающих моментов, действующих в плоскости движения самолёта, изображена на рисунке 23.

Рис.23
Максимальный момент, равный 489,57кНм, действует в точке навески шасси.
Эпюра изгибающих моментов, действующих в плоскости перпендикулярной плоскости движения самолёта, изображена на рисунке 24.

Рис. 24
Скачек на эпюре в точке присоединения стержня к цилиндру, созданный эксцентриситетно приложенной силой (вертикальной проекцией усилия в стержне), равен кНм.
Крутящий момент равен величине
кНм
и нагружает только цилиндр.
В проектировочном расчете для телескопической стойки подбирают толщины стенок цилиндра и штока. Вначале для каждого из указанных элементов выбираем сечение, в котором изгибающий момент имеет максимальное значение. Осевые усилия и крутящий момент в проектировочном расчете не учитываем. Из условия прочности
,
где k – коэффициент пластичности, принимаем ;
W – момент сопротивления
, ;
МПа.
Из этого уравнения находим
.
Зная наружный диаметр штока получим внутренний
м
Тогда толщина стенки .
Аналогично находим значение для цилиндра, но так как наружный диаметр цилиндра неизвестен, то в нулевом приближении принимаем его равным м. Тогда получим
м.
мм.
Расчетное давление газа в амортизаторе
МПа.
Газ давит на шток с силой
кН.
Несоответствие между силой Рш
и внешней нагрузкой 528,127 кН объясняется наличием сил трения в буксах. Таким образом, сила трения в одной буксе равна величине
кН.
На верхнем конце штока газ давит на шток с силой
кН.
Следовательно, между сечениями, проходящими через верхнюю и нижнюю буксы, шток сжимается силой
кН;
ниже сечения нижней буксы – силой
кН.
На цилиндр газ воздействует через уплотнение с осевой силой
кН,
растягивающей цилиндр. При построении эпюры Nц
, следует учесть также силы Fтр
и Sz
. Окончательный вид эпюр осевых сил Nц
и Nш
показан на рис. 25

Рис. 25
Вычисляем напряжение в расчетном сечении по формулам

Вначале находим вспомогательные величины:

F – площадь сечения штока;
W – момент сопротивления штока;
кпл
- коэффициент пластичности штока.
Для напряжений получим

- нормальные напряжения, направленные вдоль оси z;
- тангенциальные напряжения разрыва цилиндрических элементов от воздействия внутреннего давления;
- радиальные напряжения в цилиндрических элементах;
- касательные напряжения;
Для более опасного варианта (
= - 1296 МПа) имеем эквивалентные напряжения

Коэффициент избытка прочности:
.
Найдем для штока критические напряжения потери устойчивости и предельный изгибающий момент. Из формулы Эйлера
,
R – радиус срединной поверхности цилиндрического элемента;
- толщина цилиндрического элемента.
Так как , то:

- критическое напряжение по формуле Тетмайера.
Так как максимальное сжимающее напряжение σz
= 1296 МПа не превышает σкр
, то шток не теряет устойчивость.
При находим

Мпред
- предельный изгибающий момент в рассматриваемом сечении.
Коэффициент избытка прочности
.
Проверочный расчет цилиндра
Запишем для цилиндра

F – площадь сечения цилиндра;
W – момент сопротивления цилиндра;
- коэффициент пластичности цилиндра.
Для напряжений получим

- нормальные напряжения направленные вдоль оси z;
- тангенциальные напряжения разрыва цилиндрических элементов от воздействия внутреннего давления ;
- радиальные напряжения в цилиндрических элементах;
- касательные напряжения;
Для более опасного варианта имеем эквивалентные напряжения

Коэффициент избытка прочности:

Найдем для цилиндра критические напряжения потери устойчивости и предельный изгибающий момент. Из формулы Эйлера

R – радиус срединной поверхности цилиндрического элемента;
- толщина цилиндрического элемента.
-
критическое напряжение по формуле Тетмайера.
Так как максимальное сжимающее напряжение σz
= 1139 МПа не превышает σкр
, то цилиндр не теряет устойчивость.
При находим

Мпред
- предельный изгибающий момент в рассматриваемом сечении.
Коэффициент избытка прочности
.
Заключение о прочности шасси
Цилиндр и шток прочны в пределах точности принятой расчетной схемы, если толщины их стенок имеют значения
мм, мм.
Может оказаться, что толщина стенки цилиндра зависит от его локальной прочности в месте приложения к цилиндру сосредоточенной силы от подкоса.
Однако для решения этой задачи следует ввести более точную расчетную схему.
Расчетный изгибающий момент
кНм.
Диаметр оси подбираем из условия
,
которое принимает вид
м.
Изгибающий момент при единичной перегрузке
кНм.
Для максимальных напряжений в оси
МПа
Величина предела выносливости гладкого полированного образца из легированной стали
МПа.
Принимая коэффициент , учитывающий качество обработки поверхности детали равным , получаем предел выносливости
МПа.
С помощью МКЭ (приложение 2) находим коэффициент концентрации напряжений
.
Находим предел выносливости детали
МПа.
Тогда величина

Считая параметры уравнения кривой усталости равными
, , определяем
.
Определив значения функций из графиков, [ 1 ] стр. 62,

находим правую часть корректированной линейной гипотезы суммирования усталостных повреждений
.
Долговечность оси колеса , характеризуемую числом взлётов-посадок вычисляем по формуле

Значение функции в соответствии с графиком равно

.
Принимая коэффицент запаса по ресурсу , найдем минимальный гарантийный ресурс оси колеса
посадок.
148 РЕДУЦИР. ТОЛЩИНЫ
OБЩИE ДAHHЫE M XI YI FI .0040
.7200E+11 29 .0000 .0000 .1000E-14 .0060
-.5500E+09 4 1.0290 .4970 .1387E-01 .0060
-.3440E+09 3 1.2540 .5210 .2780E-02 .0060
.1201E+08 4 1.5570 .5390 .2780E-02 .0060
.1290E+07 2 1.8600 .5760 .2780E-02 .0060
.0000E+00 29 2.1620 .5450 .2780E-02 .0060
.1190E+07 15 2.4650 .5380 .2780E-02 .0060
-.3403E+05 16 2.7670 .5250 .2780E-02 .0060
.2145E+01 3.0700 .5080 .2780E-02 .0060
3.3710 .4860 .2780E-02 .0060
3.6730 .4600 .2780E-02 .0060
3.9750 .4310 .2780E-02 .0060
4.2730 .3990 .2780E-02 .0060
4.5770 .3640 .2780E-02 .0032
4.8020 .3360 .8030E-02 .0072
4.8020 -.1660 .3770E-02 .0072
4.5760 -.1810 .2330E-02 .0072
4.2720 -.2000 .2330E-02 .0072
3.9730 -.2170 .2330E-02 .0072
3.6710 -.2320 .2330E-02 .0072
3.3670 -.2460 .2330E-02 .0072
3.0670 -.2590 .2330E-02 .0072
2.7650 -.2580 .2330E-02 .0072
2.4630 -.2680 .2330E-02 .0072
2.1610 -.2740 .2330E-02 .0072
1.8590 -.2760 .2330E-02 .0072
1.1560 -.2730 .2330E-02 .0072
1.2550 -.2650 .2330E-02 .0052
1.0290 -.2500 .7690E-02 .0080
MX= .11948E+08 MY= .17681E+07 NZ= .00000E+00 IX= .15907E-02
IY= .10304E+00 FS= .39432E-01 Итераций- 19
ПОТОКИ КАСАТЕЛЬНЫХ HАПРЯЖEHИЯ ГЛАВНЫЕ ЦЕНTPAЛЬНЫЕ РЕДУKЦИOНHЫE УCИЛИЙ
ДEЙСTBИTEЛЬHЫE Х y КOЭФФИЦИЕНТЫ -.4989E+05
.3665E+09 -.2683E+01 -.4955E+00 .1007 -.3133E+06
-.3473E+09 -.1674E+01 .4213E-01 1.0060 -.2319E+06
-.3023E+09 -.1450E+01 .7508E-01 .5168 -.1480E+06
-.3069E+09 -.1148E+01 .1051E+00 .3820 -.6102E+05
-.3144E+09 -.8470E+00 .1542E+00 .2704 .2529E+05
-.3113E+09 -.5440E+00 .1353E+00 .3062 .1122E+06
-.3120E+09 -.2410E+00 .1403E+00 .2973 .1993E+06
-.3118E+09 .6128E-01 .1394E+00 .3006 .2866E+06
-.3109E+09 .3647E+00 .1345E+00 .3123 .3738E+06
-.3092E+09 .6664E+00 .1245E+00 .3376 .4609E+06
-.3070E+09 .9692E+00 .1105E+00 .3803 .5480E+06
-.3042E+09 .1272E+01 .9361E-01 .4500 .6354E+06
-.3010E+09 .1571E+01 .7351E-01 .5771 .7213E+06
-.2873E+09 .1876E+01 .5066E-01 .8280 .9070E+06
-.2029E+09 .2102E+01 .3165E-01 1.0060 .7280E+06
.4757E+09 .2122E+01 -.4700E+00 .1347 .6424E+06
.3679E+09 .1897E+01 -.4939E+00 .0992 .5556E+06
.3727E+09 .1594E+01 -.5250E+00 .0947 .4677E+06
.3771E+09 .1296E+01 -.5540E+00 .0910 .3786E+06
.3813E+09 .9947E+00 -.5810E+00 .0878 .2886E+06
.3853E+09 .6915E+00 -.6071E+00 .0850 .1976E+06
.3891E+09 .3923E+00 -.6320E+00 .0826 .1061E+06
.3908E+09 .9050E-01 -.6431E+00 .0816 .1376E+05
.3941E+09 -.2109E+00 -.6651E+00 .0796 -.7929E+05
.3968E+09 -.5124E+00 -.6831E+00 .0781 -.1729E+06
.3989E+09 -.8141E+00 -.6972E+00 .0770 -.2675E+06
.4026E+09 -.1517E+01 -.7222E+00 .0752 -.3617E+06
.4007E+09 -.1418E+01 -.7103E+00 .0761 -.4989E+05
.5140E+09 -.1644E+01 -.7043E+00 .0986 .7110E+06
Равнодействующие нормальных напряжений:
MX= .11844E+08 MY= .18281E+07 NZ=-.73329E+05

|