Введение
К мероприятиям
по разработке
новых прогрессивных
технологических
процессов
относится и
автоматизация,
на ее основе
проектируется
высокопроизводительное
технологическое
оборудование,
осуществляющее
рабочие
и вспомогательные
процессы без
непосредственного
участия человека.
Одна
из основных
закономерностей
развития техники
на современном
этапе заключается
в том, что автоматизация
проникает во
все отрасли
техники, во все
звенья производственного
процесса, вызывая
в них качественные
изменения,
раскрывая
невиданные
ранее возможности
роста производительности
труда, повышение
качества и
увеличение
выпуска продукции,
облегчение
условий труда.
Однако еще
имеется ряд
проблем, от
решения которых
зависит ускорение
развития средств
автоматизации.
Разработчики
изделий и создатели
оборудования
не имеют единой
методологии,
не достаточно
освещены методы
анализа степени
подготовленности
изделий к
автоматизированному
производству,
методы анализа
линий, их оснащенности
средствами
контроля и
автоматического
управления.
Развитие
автоматизации
на современном
этапе характерно
смещением
центра тяжести
разработок
массового на
серийное
производство,
составляющее
основную часть
машиностроительной
отрасли. Другая
характерная
особенность
современной
автоматизации
- расширение
арсенала технических
средств и, как
следствие,
многовариантность
решения задач
автоматизации
производственных
процессов.
Для
решения данных
вопросов и была
проделана
данная курсовая
работа.
1. РАЗРАБОТКА
ТЕХНОЛОГИЧЕСКОГО
ПРОЦЕССА
Классификация
объектов
производства.
Эффективность
автоматизации
сборочного
производства
на базе промышленных
роботов зависит
от степени
унификации
и нормализации
объектов роботизации
и, в первую очередь,
деталей. Основой
унификации
и стандартизации
объектов
механосборочного
производства
является их
четкая классификация,
которая облегчает
выбор транспортно-загрузочных
устройств для
подачи деталей,
позволяет
оптимизировать
параметры этих
устройств,
упрощает разработку
роботизированного
технологического
процесса, позволяет
производить
направленный
анализ технологичности
конструкции
деталей.
Объекты
классификации
классифицируются
по конструктивным
параметрам
и свойствам
материала
деталей.
Произведем
классификацию
каждой из деталей
представителей,
входящих в
сборочный узел
по основным
признакам.
Деталь
типа: валик с
головкой, далее
- ‘
винт ’:
- имеет
форму тела
вращения
- симметричная
- имеет
одну ось симметрии,
параллельную
оси вращения
- имеет
одну плоскость
симметрии
- деталь
мелкая
- простая
в исполнении
- материал
обладает магнитными
свойствами
- является
проводником
Деталь
типа ‘
шайба ’:
- имеет
форму тела
вращения
- симметричная
- имеет
одну ось симметрии,
параллельную
оси вращения
- имеет
две плоскости
симметрии
- деталь
мелкая
- простая
в исполнении
- материал
обладает магнитными
свойствами
- является
проводником
1.2. Анализ
технологичности
конструкции.
При анализе
вопросов
технологичности
конструкции
целесообразно
выделять анализ
технологичности
деталей и анализ
технологичности
изделий.
Приводя
анализ технологичности
деталей необходимо
оценить их
форму, классифицировать
детали по количеству
осей и плоскостей
симметрий,
возможных
различных
положений
детали , определить
возможность
сцепления
деталей в цепочки,
выявить наличие
фасок или
направляющих
элементов у
сопрягаемых
деталей, отметить
простоту и
надежность
установки
базовых деталей
изделия на
рабочих позициях
сборочных
автоматов с
учетом принципов
совмещения
и постоянства
баз, выявить
возможность
использования
унифицированных
стандартных
и нормализованных
деталей.
Конструкция
деталей такова,
что при выдаче
их из бункерно-ориентирующих
устройств они
не сцепляются
в виде двух или
более цепочек,
образование
которых приводит
к прекращению
выдачи деталей
из бункеров.
Детали имеют
простую геометрическую
форму, удобные
технологические
базы. В геометрии
деталей отсутствуют
сложные в исполнении
элементы. Являясь
симметричными,
простыми деталями
винт и шайба
уменьшают
количество
возможных
положений на
лотке, тем самым
упрощая процесс
ориентации.
Элементы
данного узла
(рис. 1.1.) сопрягаются
по посадке с
зазором H7/f7,
для обеспечения
простоты сопряжения
необходимо
ввести конструктивный
элемент - фаску,
ее величина
будет рассчитана
позже. Простота
конструкции
винта обеспечивает
надежную установку
и закрепление
в сборочном
приспособлении.
Конструкция
изделия в целом
такова, что при
сборочном
процессе детали
могут подаваться
по простым
прямолинейным
траекториям,
что удобно для
подвода и отвода
сборочных
инструментов.
Также исключается
использование
дополнительного
приспособления
для поворота
так как процесс
сборки производится
с одной стороны.
А это заметно
упрощает
производственный
процесс.
Еще один
конструктивный
элемент - канавка
необходим для
более плотного
прилегания
торцов деталей
друг к другу.


рисунок 1.1.
1.3. Построение
операции сборки.
Для
составления
схемы автоматической
сборки используем
рекомендуемый
источник -
[6
,c. 483-485];
Собираемые
детали и сборочный
узел изображены
в виде прямоугольника,
а операции - в
виде окружностей
с последовательной
нумерацией.
Процесс
сборки (рис.
1.2.) включает в
себя:
1а - загрузка
шайб с транспортера
в бункерно-загрузочное
устройство.
1б - загрузка
винтов с транспортера
в бункерно-загрузочное
устройство.
2а - предварительная
ориентация,
захват, отсекание
и подача шайб
в
ориентирующее
и базирующее
сборочное
устройство.
2б - предварительная
ориентация,
захват, отсекание
и подача винтов
в
ориентирующее
и базирующее
сборочное
устройство.
3 - ориентация
сопрягаемых
деталей на
сборочной
позиции с точностью,
обеспечивающей
собираемость
узла и фиксацию.
4 - соединение
и фиксация
сопрягаемых
деталей
5 - контроль
требуемой
точности
относительного
положения
деталей
сопряженных
в узел.
6 - загрузка
и транспортировка
готовой сборочной
единицы.
Обозначения:
Д1 - винт
Д2 - шайба
Строим
схему операции
сборки.

рисунок 1.2.
2. РАЗРАБОТКА
ПРОЕКТА АВТОМАИЧЕСКОГО
СБОРОЧНОГО
ОБОРУДОВАНИЯ.
2.1. Определение
условий собираемости.
2.1.1. Для
данного сборочного
узла наиболее
подходит базирование
по наружной
цилиндрической
поверхности
винта.
Возможность
автоматического
сопряжения
винта с шайбой
выражается
по формуле:
Dmin
і
dH/2
+ 2e, мм
где Dmin
- минимальный
зазор сопряжения,
мм;
dН
- допуск наружного
диаметра шайбы,
мм;
e
- эксцентриситет
наружной и
внутренней
поверхности
шайбы, мкм.
Подставив,
используя СТ
СЭВ 144-75, значения
величин, данных
в задании получаем:
0.013 і
0.015/2
+ 2*0.007
0.013 і
0.0215
Неравенство
не выполняется.
Для осуществления
автоматической
сборки торцевые
поверхности
сопрягаемых
деталей должны
иметь фаску
размером C:
C
= dH
/ 2 + dв
/ 2 + 2*e, мм
где dв
- допуск внутреннего
диаметра шайбы,
мкм;
Подставив
значения получаем:
C
= 0.015 / 2 +0.015/2 +2*0.007 = 0.029 мм
По полученным
результатам
выбираем фаску
на торцевой
поверхности
винта C
= 0.4
x 45°
2.2. Выбор
схем базирования
собираемых
деталей на
сборочной
позиции.
Процесс
автоматической
сборки связан
с изменением
базирования
деталей по пути
загрузочных
устройств до
соединения
и фиксации
достигнутого
ими положения.
Наиболее
ответственным
этапом автоматизации
сборки является
обеспечение
точности
относительного
положения
собираемых
деталей на
технологических
базах перед
их сопряжением.
Существует
два метода
реализации
относительного
ориентирования
детали перед
сборкой:
- жесткое
базирование;
- самоориентация;
Пользуясь
рекомендациями
[12,
c.51-52]
выбираем смешанный
метод ориентации
деталей перед
сборкой. Деталь
типа винт -
самоориентируется
(принцип действия
самоориентационного
приспособления
рассмотрен
дальше), деталь
типа - шайба
ориентируется
жестким базированием,
при помощи
призматического
упора и зажима
(рис. 4.3)
3. РАЗРАБОТКА
ТЕХНИЧЕСКОГО
ПРОЕКТА АВТОМАТИЕСКОГО
СБОРОЧНОГО
ОБОРУДОВАНИЯ.
3.1.
Бункерно-загрузочное
ориентирующее
устройство
(БЗОУ) для винтов.
Исходя
из задания
выбираем секторный
механизм ориентации.
Принцип
действия выбранного
БЗОУ состоит
в следующем.
Секторный
механизм ориентации
состоит из
бункера (1), подвижного
сектора (2) и
сбрасывателя
(3) , предназначенного
для перекрытия
части щели для
обеспечения
свободного
скольжения
заготовок из
сектора в накопитель.
Сбрасыватель
закреплен на
поворотном
рычаге и поджимается
к сектору пружиной
(имеются и другие
конструкции
сбрасывателей).
Сектор сборный,
и его исполнение
зависит от
формы заготовок.
Сектор закреплен
в бункере на
осях, относительно
которых имеет
качание.
Качательные
движения сектору
сообщаются
с помощью кулачка,
кулисы, кривошипа
(4) или штока
пневмоцилиндра
.
При
определении
числа двойных
ходов сектора
следует исходить
из необходимости
выдачи захваченных
за один рабочий
цикл заготовок
из паза сектора
в накопитель
и исключения
выбрасывания
заготовок в
момент нахождения
накопителя
в верхнем положении.
Расчет
геометрических
параметров
БЗОУ для винтов.
Время
выпадения
последней
заготовки из
паза сектора
в лоток определяется
формулой:
t
= Ц
2L/(g*(sina1
- f*cosa1)),
с
где
L
- длина паза
сектора.(8ё10)*D
f
- коэффициент
трения
(0.04)
a
- угол наклона
сектора (45°)
Подставим
значения :
t
= Ц
2 * 500 / (9.8*(sin 45°
- 0.04 * cos 45°))
= 12, с
Число
двойных ходов
сектора определяется
по формуле:
n
= Ц
(g * cos a)
/ (d5
* L),
дв.х./мин.
где
L - ширина
сегмента, мм
d5
-
коэффициент,
зависящий от
угла a
и определяется
по [6.
с.251]
Подставляем
значения :
n
= Ц
(9.8 * cos 45°)
/ (0/007 * 50) = 5
Высота
засыпки чаши
определяется
по формуле:
Нзч
= Т1
* Vз
/
(0.78 * Д * tц
* К), м
где T1
- время между
досыпками чаши,
с
Vз
- объем заданной
заготовки или
детали, м3
Д - Диаметр
чаши, м
К - 0.4ё06
коэффициент
объемного
заполнения
tц
- время сборки
одной детали
на операции.
Приняв
Т1
= 30 мин, Д = 0.5 м, tц
= 5 с, К = 0.5 и зная что
Vвинта
= pR12
*
H + pR22
* H - pR32
* H, м3
Получаем:
Vвинта
=p
*0.0252
* 0.005 + p
* 0.0102
* 0.015 - p
* 0.0052
* 0.02= 1.3*10-5,
м3
Нзч
= 1800 * 1.3 * 10-5
/
( 0.78 * 0.5 * 5 * 0.5 ) = 0.0279 »
0.028, м
Необходимости
в предбункере
нет.
3.2. Бункерно-загрузочное
ориентирующее
устройство
для шайб.
Конструкция
и принцип действия
данного БЗОУ
аналогичны
описанному
так как радиальные
размеры деталей
совпадают а
осевые имеют
небольшие
отличия исходя
из отношения
d / L.
Исключение
составляет
высота засыпки
чаши, которая
составит приняв:
Т1
= 30 мин, Д = 0.5 м, tц
= 5 с, К = 0.5 и зная что
Vшайбы
= pR12
*
H - pR22
* H, м3
Получаем:
Vшайбы
= p
* 0.0252
* 0.005 - p
* 0.0052
* 0.005 = 9.43*10-6,
м3
Нзч
= 1800 * 9.43 * 10-6
/
( 0.78 * 0.5 * 5 * 0.5 ) = 0.0017, м
Необходимости
в предбункере
также нет.
3.3. Устройства
для накопления
деталей.
В качестве
накопителя
для выравнивания
производительности
БЗОУ для винтов
используем
склиз (рис. 3.1.),
который совмещает
функцию питателя,
транспортировки
и ориентации
винтов, а для
шайб - в качестве
накопителя
используем
скат (рис. 3.2).
При
проектировании
склиза для
перемещения
винтов необходимо
рассчитать
их геометрические
параметры по
формуле:
H
= h + D,
где
H
- высота
склиза, мм;
D
- зазор
между верхней
частью лотка
и деталью, мм;
h
- высота
выступающей
части винта,
мм.
Приняв
D
= 5 мм подставив
значения, получим:
H
= 5 + 5 = 10 мм.
Тип
склиза:

рисунок 3.1.
Тип ската:

рисунок 3.2.
3.4. Устройства
ориентирования
деталей.
Устройства
ориентирования
выполнены
совместно с
устройством
накопителя.
Для склиза
элементом
ориентирования
служит непосредственно
форма склиза,
которая имеет
возможность
пропускать
винты только
головкой вверх,
не сориентированные
детали идут
на повторную
ориентацию.
Для шайбы
вообще возможность
принять положение
с осью перпендикулярной
скату очень
низкая, кроме
того в начале
накопителя
форма ската
имеет некоторый
радиальный
наклон (5-8°)
вокруг продольной
оси ската на
протяжении
100 мм, делающий
невозможным
альтернативное
положение
детали, это
видно из отношения
высоты центра
тяжести и ширины
шайбы, которая
будет являться
в альтернативном
положении
поверхностью
скольжения.
Так же для уменьшения
вероятности
выпадения
детали из ската
на участке
ориентации
высота бортиков
ската увеличена
до 30 мм, что перекрывает
центр тяжести
детали. В качестве
дополнительной
меры ориентации
можно предусмотреть
Г-образную
форму бортика
на сторону
которого радиально
повернут скат,
в таком случае
высоту бортика
следует увеличить
для создания
большего рычага
воздействия
на не сориентированную
деталь.
3.4.1. Определение
центров тяжести
деталей.
Для
определения
центра тяжести
шайбы воспользуемся
графическим
способом (рис.
3.3.), а для определения
центра тяжести
винта - аналитическо-
графическим
(рис. 3.4.).
Центр
тяжести для
сложных деталей
определяется
по формуле:
Zc
= ( Z1
* A1
+ Z2
* A2
) / (A1
+ A2),
мм
где Zc
- координата
центра тяжести
по оси z,
так как деталь
винт - симметрична
то центр тяжести
находится на
оси и нет необходимости
считать координату
смещения по
оси y,
мм;
Z1,2
- координата
z
центров тяжести
простых фигур,
мм;
А
- площади
сечений простых
фигур, мм2.
Деталь
- шайба:

рисунок 3.3.
Деталь
- винт: разбиваем
на две простых
фигуры, находим
графически
их центры тяжести,
а потом рассчитываем
центр тяжести
детали.
Zc
= ( 2.5
* 250
+ 10
* 150
) / (250
+ 150)
= 5.3,
мм

рисунок 3.4.
3.5. Отсекатели.
Для
отделения
детали от общего
потока деталей,
находящихся
в лотке-накопителе
используются
отсекатели
штифтового,
качающегося
типа (отсекатели
для отделения
винтов имеют
цидиндрическую
форму, отсекатели
для шайб - прямоугольную).
Отсекатели
обеспечивают
синхронную
выдачу деталей
из магазина,
т.е. осуществляют
ориентацию
во времени.
Деталь отделяется
от общего потока,
после чего под
действием силы
тяжести она
поступает в
механизм
межпозиционного
транспортирования.
Конструкция
и принцип работы:
отсекатель
возвратно-поступательного
действия. Лоток
по которому
транспортируются
детали имеет
два боковых
отверстия в
которых стержни
1 и2 совершают
обратные друг
другу поступательные
движения.
Поступательные
движения им
передает рычажный
механизм 3, который
имеет колебательные
движения вокруг
своей оси.
В момент
выхода из отверстия
стержня 1 деталь
Б перемещается
на место детали
А, дальше проход
закрыт стержнем
2, а следующая
за Б деталь
поступает на
место Б. Когда
совершается
обратное колебание,
рычажный механизм
приводит в
действие стержни
и стержень 1
возвращается
в лоток а
стержень
2 выходит, тем
самым освобождая
проход детали
А, и она продолжает
движение в
питатель. Образуется
замкнутый цикл.
рисунок 3.1.
Данная
конструкция
отсекателя
подходит для
обоих типов
деталей, и для
винта и для
шайбы. Даже
габаритные
размеры отсекателей
одинаковы, что
делает возможным
применение
идентичных
по своему выполнению
конструктивных
элементов.
3.6.
Питатели
Для детали
- винт в качестве
питателя используется
тот же склиз.
То есть устройство
отсекателя
смонтировано
непосредственно
в самом питателе.
Таким образом
накопитель,
отсекатель
и питатель
составляют
единый элемент,
который является
высокотехнологичным.
Для детали
- шайба питателем
является транспортер
так как гравитационное
перемещение
детали затруднительно
в виду низкого
расположения
центра тяжести
и небольшой
массы детали.
Так же транспортер
будет являться
и средством
транспортировки
готовых узлов,
обоснование
такого подхода
сводится к
рациональному
технологическому
процессу сборки
узла. Который
будет рассмотрен
позже.
4. РАЗРАБОТКА
ТЕХНИЧЕСКОГО
ПРОЕКТА АВТОМАТИЧЕСКОГО
СБОРОЧНОГО
ОБОРУДОВАНИЯ.
4.1. Общее
компоновочное
решение автоматического
сборочного
оборудования.
В процессе
выполнения
курсового
проекта мною
была разработана
следующая
компоновка
автоматического
сборочного
оборудования:

Обозначение:
буквами ‘а’
обозначен
процесс для
детали - шайба,
‘б’
- винт.
1 - Бункерно-загрузочное
ориентационное
устройство
2 - Устройство
вторичной
ориентации
3 - Накопитель
4 - Отсекатель
5 - Питатель
/ устройство
транспортировки.
6
- Сборочный
механизм
4.2.Технологический
процесс сборки.
Готовые
детали поступают
от станочного
оборудования,
в качестве
которого выбраны:
для токарных
операций - станок
16ТО2А, для сверлильной
- станок 2Н118; по
транспортеру
в бункерно-загрузочное
БЗОУ. На выходе
из ориентирующего
БЗОУ происходит
повторная
ориентация,
далее детали
поступают в
накопитель.
Порционность
выдачи деталей
в питатель из
накопителя
обеспечивает
отсекатель,
принцип действия
которого рассмотрен
в пункте 3.5. данной
работы.
Деталь
типа винт по
питателю поступает
на сборочную
позицию где
самоориентируется.
Деталь типа
шайба поступает
на транспортер
имеющий специальную
форму, обеспечивающую
согласованную
работу с отсекателем
и самоориентацию
детали на
транспортере.
Согласованность
работы с отсекателем
обеспечивается
специальным
фотоэлементом-датчиком.
Самоориентация
производится
формой транспортера,
а именно - скругленным
пальцем.
Срабатывание
механизма
сборки, которым
является
гидравлический
пресс, обеспечивается
этим же датчиком.
Готовая деталь
возвращается
на транспортер
и отправляется
в бункер готовых
изделий. Конструктивные
элементы процесса
рассмотрены
ниже.
4.3. Принципиальные
схемы основных
механизмов
и устройств.
Принцип
действия
приспособления
для сопряжения
состоит в следующем
- винт подается
по питателю
на сборочную
позицию (рис
4.1), упираясь в
ориентирующий
элемент - призму.
Шайба подается
по транспортной
ленте специальной
формы (рис 4.2), при
срабатывании
фотоэлемента
зажимное устройство
(рис 4.3) поднимает
шайбу с транспортера
и подает на
рабочую позицию,
(рис 4.4) происходит
зажим. При этом
шайба ориентируется
относительно
прижимной
призмы. Гидро-привод
обеспечивает
перемещение
запресовочной
матрице (рис.
4.1 поз. 2). Опускаясь
прес ориентирует
винт благодаря
направляющему
скругленному
пальцу. При
этом копировальный
механизм (рис
4.5) обеспечивает
развод удерживающих
винт плит, в
момент выхода
опоры из-под
винта он уже
находится в
сориентированном
положении и
отсутствие
опоры позволяет
ему соскользнуть
вниз; но направляющий
элемент имеет
расчетную длину
достаточную
для сохранения
винтом ориентации.
Наличие фаски
на сопрягаемой
части винта
обеспечивает
выбор погрешности
базирования
и начальное
сцепление с
шайбой.
В это
момент упор
преса начинает
запрессовку
винта. Достигнув
конечной позиции
прес начинает
подниматься
а зажимное
устройство
для шайбы с уже
готовым узлом
опускаться,
помещая его
на транспортер.
Для выступа
части винта
транспортер
имеет специальную
прорезь (рис
4.2).
4.4. Принцип
совмещения
баз.
Базирование
деталей производиться
относительно
общей направляющей
(размер Lб
рис.
4.1 и 4.3), что обеспечивает
общую базу и
высокую точность
при сопряжении.
4.5. Принцип
работы копировального
устройства.
Копировальное
устройство
(рис. 4.5) позволяет
вывести направляющую
опору из зоны
запрессовки.
Это обеспечивается
за счет ее
подвижности.
Опора состоит
из двух сегментов
находящихся
на двух параллельных
друг другу
осях. Благодаря
пружинам эти
сегменты прижаты
друг к другу.
Перпендикулярно
осям находится
копировальный
элемент - круглый
палец.
При
опускании
матрицы (2) вниз
подается шаблон
(1) для копира
(3). Согласно форме
шаблона копир
начинает перемещаться
и вместе с ним
опорные сегменты.
Реально высвобождение
опор произойдет
когда 10мм центровочной
и 15мм направляющей
части пальца
будут находиться
в отверстии.
Но еще до начала
воздействия
преса на винт
опоры отойдут
еще на дополнительно-запасное
расстояние
в 3мм (Lз
рис. 4.1) от центральной
оси опор.
4.6. Принцип
работы транспортера
для шайб.
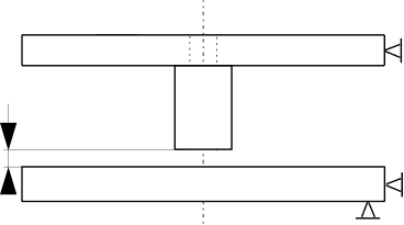
Транспортер
(рис. 4.2.) состоит
из чередующихся
двух сегментов
- загрузочного
(1) и разгрузочного
(2). Разгрузочный
сегмент имеет
центрирующий
элемент - скругленный
палец (3). И датчик
(4) для фотоэлемента,
который позволяет
отсекателю
точно подать
шайбу на транспортную
ленту, так же
датчик дает
сигнал на сборочное
приспособление
о необходимости
срабатывания
подъемного
механизма.
Загрузочный
сегмент имеет
прорезь для
выступающей
части сопряженного
узла. Ширина
транспортной
ленты обеспечивает
подъемно-зажимному
устройству
свободно выполнять
свои функции
по захвату
шайбы, так как
диаметр шайбы
более чем на
15 мм в радиальном
направлении
перекрывает
ширину ленты.

рисунок 4.1.

рисунок 4.2.

рисунок 4.5.

рисунок 4.3.

рисунок 4.4.
5. УТОЧНЕНИЕ
ОЖИДАЕМЫХ
ТЕХНИКО ЭКОНОМИЧЕСКИХ
ПОКАЗАТЕЛЕЙ
ПРОЕКТИРУЕМОГО
ОБОРУДОВАНИЯ
5.1.
Уточнение
производительности
сборочного
оборудования.
Предварительно,
на основе ранее
разработанной
циклограммы,
рассчитывается
производительность
(цикл) выполнения
сборочной
операции
Тц
с учетом времени,
затрачиваемого
на подачу,
ориентацию,
сопряжение
деталей и времени
транспортирования
собранного
узла.
По величине
Тц
определяется
производительность
Q
оборудования,
а также физическая
производительность
Qф
с учетом потерь
времени, характеризуемых
коэффициентом
использования
автоматического
оборудования
h
(
принимается,
что h
=
0.95
).
Величина
Qф
и Q
более, чем на
20% проводится
корректировка
режимов работы
сборочного
оборудования,
осуществляется
дифференциация
или концентрация
переходов.
После чего
вновь пересчитывается
оценка
Qф.
Общая
методика расчета
производится
по формулам:
Продолжительность
выполнения
сборочной
операции:
Тц
= Тп
+ Тор
+ Тс
+ Ттр
,
где
Тп
- время, затрачиваемое
на подачу деталей;
Тор
- время, затрачиваемое
на ориентацию;
Тс
- время, затрачиваемое
на сопряжение;
Ттр
- время, затрачиваемое
на транспортировку
собранного
узла.
Затраты
времени на
транспортировку
собранного
узла:
Ттр
= L
/ u,
где
L
- расстояния
лотков или
магазинов до
сборочной
позиции;
u
- скорость
перемещения
деталей при
ориентации.
Время
затрачиваемое
на сопряжение
определяется
как:
Тс
= 1
/ n
,
где
n
- число двойных
ходов пресса
в минуту ( n
= 40ё90).
Подставляя
значения в
формулы получаем:
Тп
+ Ттр
= 0.45 /
0.4 * 60 = 0.018 мин
Тс
= 1/60
= 0.016 мин
Тц
= 0.016 + 0.018 = 0.034 мин
Продолжительность,
как видно из
формул, можно
увеличить за
счет совмещения
элементов
затрат времени.
Общая производительность
оборудования
рассчитывается
по формуле:
Q
= 60 / Тц
, шт/час
Q
= 60 / 0.034 = 1765
шт/час
Фактическая
производительность
оборудования
с учетом потерь
времени составит:
Qф
= Q
* h,
где
h
- коэффициент
использования
автоматического
оборудования.
Выражающий
отношение
времени бесперебойной
работы автоматической
установки за
период к суммарному
времени работы
и простоев за
этот же период.
Коэффициент
характеризует
качество работы
автоматического
оборудования,
уровень эксплуатации,
надежность
в работе, степень
загрузки и
показывает
долю времени
его работы в
общем фонде
времени.
Qф
= 1765 * 0.96 = 1695
Рассчитаем
процент производительности:
D
= ((1 - Qф
/
Q)
* 100 %)
Ј
20 %
D
= (1 - 1695 /
2000) * 100 = 12% < 20 %
Процесс
производителен.
ЗАКЛЮЧЕНИЕ
В ходе
выполнения
курсовой работы
был разработан
автоматический
процесс производства
и сборки детали
данной в задании.
Было спроектировано
сборочное
приспособление
для сопряжения
деталей винта
и шайбы. Описан
технологический
процесс автоматизированного
сборочного
участка с применением
бункерно-загрузочных
устройств,
ориентируещего
приспособления,
отсекающих
механизмов,
транспортеров.
СПИСОК
ИСПОЛЬЗУЕМЫХ
ИСТОЧНИКОВ.
Автоматизация
производственных
процессов.
Шаумян Г.А.
’’
Высшая
школа ’’,
1967, -172с.
Автоматизация
процессов
в машиностроении.
Учеб. пособие
для вузов.
М.
,
’’
Высшая школа
’’,
1973, -456с.
Власов
С.Н., Чертаков
Б.И. Справочник
молодого наладчика
автоматических
линий и специальных
станков. Изд.
2-е переработанное
и
дополненное.
М.,
’’
Высшая школа
’’,
1977, -248с.
Комплексная
автоматизация
производства.
Л.И. Волкевич,
М.П. Коваль
-М.:
Машиностроение,
1983, 269 с.
Либерман
Я.Л. Кувшинский
В.В. Контрольно-сортировочные
автоматы
-М.:
Машиностроение,
1983, 96 с.
Маталин
А.А. Технология
машиностроения.
-М.: Машиностроение,
1985,
496 с.
Справочник
технолога-машиностроителя.
Под редакцией
А.Г.
Косиловой, Р.К.
Мещерякова.
-М.: Машиностроение,
1985, 656 с.
8.
Справочник
технолога-машиностроителя.
В 2-х т. Т.2 /
Под редакцией
А.Г.
Косиловой, Р.К.
Мещерякова.
-М.: Машиностроение,
1985, 496 с.
Эксплуатация
и наладка станков
с программным
управлением
и
промышленных
роботов. Под
редакцией
Марголита Р.Б.
-М.:
Машиностроение,
1991. -272с.
Промышленные
роботы и манипуляторы.
Под редакцией
Е.Е. Егоровой
Каталог.
-М.: Машиностроение,
1986, 130 с.
МИНИСТЕРСТВО
ОБРАЗОВАНИЯ
УКРАИНЫ
Новокаховский
политехнический
институт
Кафедра:
технология
машиностроения
КУРСОВАЯ
РАБОТА
по курсу:
’’ОСНОВЫ
АВТОМАТИЗАЦИИ
ПРОИЗВОДСТВЕННЫХ
ПРОЦЕССОВ’’
Разработал:
Россинский
Г.А.
Проверил:
Трифонова
О.Ф.
Новая Каховка
1998
РЕФЕРАТ.
Курсовая
работа содержит
28 листов пояснительной
записки и 4 чертежных
листа формата
А2.
В ходе
курсовой работы
была проделана
следующая
работа:
- разработан
технологический
процесс автоматической
сборки детали
- разработан
проект автоматического
сборочного
оборудования
-
рассчитан
ожидаемый
технико-экономический
показатель
проектируемого
оборудования
СОДЕРЖАНИЕ.
Введение
5
РАЗРАБОТКА
ТЕХНОЛОГИЧЕСКОГО
ПРОЦЕССА
6
1. Классификация
объектов
производства.
6
2. Анализ
технологичности
конструкции.
7
Построение
операции сборки.
8
РАЗРАБОТКА
ПРОЕКТА АВТОМАИЧЕСКОГО
СБОРОЧНОГО
ОБОРУДОВАНИЯ.
10
1. Определение
условий собираемости.
10
2. Выбор
схем базирования
собираемых
деталей
на сборочной
позиции.
11
РАЗРАБОТКА
ТЕХНИЧЕСКОГО
ПРОЕКТА
АВТОМАТИЕСКОГО
СБОРОЧНОГО
ОБОРУДОВАНИЯ.
12
1.
Бункерно-загрузочное
ориентирующее
устройство
(БЗОУ)
для винтов.
12
2. Бункерно-загрузочное
ориентирующее
устройство
для шайб. 14
3. Устройства
для накопления
деталей.
14
4. Устройства
ориентирования
деталей.
15
4.1. Определение
центров тяжести
деталей.
16
5. Отсекатели.
17
6.
Питатели
18
РАЗРАБОТКА
ТЕХНИЧЕСКОГО
ПРОЕКТА АВТОМАТИЧЕСКОГО
СБОРОЧНОГО
ОБОРУДОВАНИЯ.
19
1.Общее
компоновочное
решение.
19
2.Технологический
процесс сборки.
20
3. Принципиальные
схемы основных
механизмов
и устройств.
21
4. Принцип
совмещения
баз.
22
5. Принцип
работы копировального
устройства.
22
6. Принцип
работы транспортера
для шайб.
22
УТОЧНЕНИЕ
ОЖИДАЕМЫХ
ТЕХНИКО ЭКОНОМИЧЕСКИХ
ПОКАЗАТЕЛЕЙ
ПРОЕКТИРУЕМОГО
ОБОРУДОВАНИЯ
26
1.
Уточнение
производительности
сборочного
оборудования.
26
ЗАКЛЮЧЕНИЕ
28
СПИСОК
ИСПОЛЬЗУЕМЫХ
ИСТОЧНИКОВ.
29
|