1.
Конструктивный расчет внецентренно сжатых колонн
1.1
Проектирование, конструирование и особенности расчета
Целью конструктивного расчета колонн является подбор арматуры при заданных по конструктивным требованиям размерам поперечного сечения.
Сборные железобетонные колонны, применяемые для одноэтажных производственных зданий, бывают сплошного сечения, двухветвевые, двутаврового и полого сечений. Наибольшее применение получили колонны сплошного сечения и двухветвевые.
В зданиях пролетом до 24 м при шаге колонн 6 м, кранах грузоподъемностью до 50 т и высоте колонн до 12-14 м рекомендуется применять сплошные колонны прямоугольного сечения.
Рекомендации по назначению размеров сечений колонн даны в статическом расчете одноэтажной рамы производственного здания.
Для изготовления колонн используют бетон классов BI5 - В50.
Площадь сечения рабочей продольной арматуры рассчитывают, причем в зависимости от гибкости она должна быть не менее:
при l0
/h < 5 – As
= As
' = 0,0005·b·h0
; при 5 ≤ l0
/h < 10 - As
= As
' = 0,001·b·h0
;
при 10 ≤ l0
/h < 24 - As
= As
' = 0,002·b·h0
; при l0
/h > 24 - As
= As
' = 0,0025·b·h0
.
В колоннах при воздействии изгибающих моментов разного знака, но близких по величине, рекомендуется симметричное продольное мирование. Продольную рабочую арматуру колонн применяют обычно из стали класса A-III диаметром не менее 16 мм. Расстояние между осями стержней следует принимать не более 400 мм, при больших расстояниях между ними конструктивно устанавливают дополнительные стержни диаметром 12 мм.
В соответствии с конструктивными требованиями поперечную арматуру должны устанавливать на расстояниях при Rsc
≤ 400 МПа - не более 500 мм и не более: 20 d - при сварных каркасах и 15 d - при вязаных каркасах; при Rsc
> 450 МПа - не более 400 мм и не более: 15 d - при сварных каркасах и 12 d - при вязаных каркасах. Если насыщение элемента сжатой продольной арматурой составляет свыше 1,5%, а также всё сечение сжато и общее насыщение арматурой свыше 3%, то расстояние между хомутами должно быть не более 300 мм и не более 10d [1, п.5], где d - наименьший диаметр сжатых продольных рабочих стержней. Диаметр поперечных стержней в сварных каркасах назначают из условия сварки [1, прил.3,4].
Забиваем Сайты В ТОП КУВАЛДОЙ - Уникальные возможности от SeoHammer
Каждая ссылка анализируется по трем пакетам оценки: SEO, Трафик и SMM.
SeoHammer делает продвижение сайта прозрачным и простым занятием.
Ссылки, вечные ссылки, статьи, упоминания, пресс-релизы - используйте по максимуму потенциал SeoHammer для продвижения вашего сайта.
Что умеет делать SeoHammer
— Продвижение в один клик, интеллектуальный подбор запросов, покупка самых лучших ссылок с высокой степенью качества у лучших бирж ссылок.
— Регулярная проверка качества ссылок по более чем 100 показателям и ежедневный пересчет показателей качества проекта.
— Все известные форматы ссылок: арендные ссылки, вечные ссылки, публикации (упоминания, мнения, отзывы, статьи, пресс-релизы).
— SeoHammer покажет, где рост или падение, а также запросы, на которые нужно обратить внимание.
SeoHammer еще предоставляет технологию Буст, она ускоряет продвижение в десятки раз,
а первые результаты появляются уже в течение первых 7 дней.
Зарегистрироваться и Начать продвижение
Для местного усиления железобетонных сборных колонн вблизи их стыков применяют косвенное армирование в виде сварных сеток (не менее 4 шт.) из стали классов А-I, А-Ш и Вр-I преимущественно диаметром 5-10 мм, принимая их шаг не менее 60 мм, не более 150 мм и не более 1/3 меньшей стороны сечения колонны. Размеры ячеек сеток не менее 45 мм, не более 100 мм и не более 1/4 меньшей стороны сечения колонны.
Ветви двухветвевой колонны в нижней части соединяют распорками, расстояние между осями которых принимают (8...12) hw
, где hw
- меньший размер поперечного сечения ветви. Высоту сечения рядовой распорки принимают равной (1,5...2) hw
, а верхней - не менее удвоенной высоты сечения рядовой распорки. Расстояние от уровня пола до низа первой надземной распорки для обеспечения удобного прохода принимают не менее 1,8 м. Армирование распорок обычно симметричное.
Верхнюю распорку армируют рабочими продольными стержнями, отгибами, горизонтальными и вертикальными поперечными стержнями (рисунок 1). Шаг горизонтальных стержней следует принимать не более 1/4 высоты распорки и не более 150 мм, вертикальных стержней - не более 200 мм, при этом суммарная площадь горизонтальных поперечных стержней принимается не менее 0,001·b·h0
, где b и h0
- соответственно ширина и рабочая высота сечения распорки, а площадь отгибов - ≥0,002·b·h0
, при этом необходимость установки отгибов проверяют расчетом.

Рисунок 1 - Схема армирования верхней распорки:
1 и 7 - арматура ветвей соответственно надкрановой и подкрановой;
2 - сетки косвенной арматуры;
3 и 5 - отгибы соответственно распорки и подкрановой консоли;
6 и 4 - соответственно вертикальная и горизонтальная арматура распорки.

Рисунок 2 - Консоль колонны
Для опирания подкрановых балок в колонне устраивают короткие консоли (рисунок 2), размеры сечения которых проверяют расчетом, а назначают исходя из следующих положений: высота консоли в опорном сечении h ≥ 250 мм; h´ принимают в зависимости от грузоподъемности крана Q. При Q < 5 т и h´ > 300 мм, при 5 т < Q <15 т h ≥ 400 мм и при Q > 15 т h' ≥ 500 мм. Кроме того, h´ ≥ (1/3) h.
При h ≤ 2,5·a в качестве поперечной арматуры принимают наклонные поперечные стержни по всей высоте консоли (рисунок 3, а), при h >2,5·а - в виде отогнутых стержней и горизонтальных хомутов (см. рисунок 3, б), при h > 3,5а и Qc
< Rb
·b·h0
- в виде горизонтальных хомутов. Во всех случаях шаг поперечных стержней должен быть не более h /4 и не более 150 мм, диаметр отогнутых стержней - не более 1/15 длины отгиба linc
и не более 25 мм. Суммарная площадь сечения отгибов и наклонных стержней должна быть не менее 0,002·b·h0
.
Сервис онлайн-записи на собственном Telegram-боте
Попробуйте сервис онлайн-записи VisitTime на основе вашего собственного Telegram-бота:
— Разгрузит мастера, специалиста или компанию;
— Позволит гибко управлять расписанием и загрузкой;
— Разошлет оповещения о новых услугах или акциях;
— Позволит принять оплату на карту/кошелек/счет;
— Позволит записываться на групповые и персональные посещения;
— Поможет получить от клиента отзывы о визите к вам;
— Включает в себя сервис чаевых.
Для новых пользователей первый месяц бесплатно.
Зарегистрироваться в сервисе

Рисунок 3 - Схемы армирования консолей:
а - наклонными поперечными стержнями; б - отогнутыми стержнями и горизонтальными хомутами, 1 - каркас колонны; 2 - продольная рабочая арматура консоли; 3 и 5 - хомуты соответственно наклонные и горизонтальные; 4 - отгибы
Колонны одноэтажного промышленного здания рассчитывают как внецентренно сжатые на усилия, найденные при расчете поперечной рамы с учетом влияния прогиба элемента на величину эксцентриситета продольной силы, как в плоскости рамы, так и из её плоскости. Расчет из плоскости изгиба можно не производить, если гибкость элемента из плоскости рамы меньше гибкости в плоскости рамы. Эксцентриситет продольной силы принимают равным е0
= М/N, но не менее величины случайного эксцентриситета (еа
= l/600; еа
= h/ 30; еа
= 0,01 м). При расчете колонн из плоскости изгиба величину эксцентриситета е0
принимают равной случайному эксцентриситету.
Увеличение эксцентриситета из-за влияния прогиба на несущую способность учитывают путём умножения эксцентриситета е0
на коэффициент η:
, (1)
где Ncr
- условная критическая сила.
При гибкости элемента l0
/i ≤ 14 (для прямоугольных сечений при l0
/hb
≤ 4) допускается принимать η = 1.
Колонны поперечной рамы представляют собой стойки с несмещаемыми опорами, поэтому в сечениях I-I и IV-IV влияние дополнительного изгибающего момента незначительно и для этих сечений принимают η =1.
При N ≥ Ncr
следует увеличивать размеры сечения.
Рассчитывая колонны, влияние вероятной продолжительности действия нагрузок на прочность бетона учитывают с помощью коэффициента условий работы γb
2
[1]. При отсутствии нагрузок малой суммарной длительности действия (ветровой, крановой) расчет прочности следует производить при γb
2
< 1.
Если есть нагрузки малой суммарной длительности, величину γb
2
принимают в зависимости от выполнения условия
, (2)
где МI
- момент усилий от всех нагрузок без учета нагрузок малой суммарной длительности; МII
- момент усилий от действия всех нагрузок.
Моменты МI
и МII
- принимают относительно оси, проходящей через центр тяжести сечения растянутой (или наименее сжатой) арматуры.
Если условие (2) выполнено, то γb
2
= 1,1, в ином случае γb
2
< 1.
1.2
Пример конструктивного расчета колонн
За исходные данные при расчете принимают следующие величины.
Геометрические характеристики:
l - длина элемента; l0
- расчетная длина элемента; еa
- случайный эксцентриситет; е0
- эксцентриситет продольной силы N относительно центра тяжести сечения;
I и IS
- момент инерции соответственно сечения бетона и площади сечения арматуры относительно центра тяжести сечения элемента;
ri
- радиус инерции поперечного сечения элемента относительно центра тяжести;
х и ξ - соответственно высота и относительная высота сжатой зоны бетона;
ξR
-граничные значения величины ξ ;
h1
и b1
- соответственно высота и ширина сечения верхней (надкрановой) части колонны;
h2
и b2
- то же, нижней (подкрановой) части сплошной колонны;
hw
и bw
– соответственно высота и ширина сечения ветви;
h - высота поперечного сечения сквозной колонны;
Н - полная высота колонны;
Н1
и Н2
- соответственно высота надкрановой и подкрановой частей;
l1
– пролет распорки;
с - расстояние между осями ветвей нижней части колонны;
S - расстояние между осями распорок;
nc
- количество панелей в подкрановой части сквозной колонны;
bS
и hS
– соответственно ширина и высота сечения распорки;
AS
и A/
S
- площадь сечения продольной арматуры, расположенной соответственно в растянутой и сжатой зонах;
е - расстояние от направления действия продольной силы до центра тяжести сечения растянутой арматуры;
Sw
– расстояние между вертикальными поперечными стержнями;
Аw
- площадь сечения поперечных стержней, расположенных в одной нормальной к продольной оси элемента плоскости, пересекающей наклонное сечение;
φf
- коэффициент, учитывающий влияние сжатых полок в тавровых и двутавровых элементах.
Характеристики материалов и коэффициенты, используемые при расчете:
Rb
- расчетное сопротивление бетона сжатию (призменная прочность);
Rbt
- расчетное сопротивление бетона осевому растяжению;
RS
- расчетное сопротивление арматуры растяжению;
RSC
- расчетное сопротивление арматуры сжатию;
RSW
- расчетное сопротивление растяжению поперечной арматуры;
Еb
- модуль упругости бетона;
ЕS
и Ew
- модуль упругости соответственно продольной и поперечной арматуры;
αε
- отношение модуля упругости арматуры ЕS
к модулю упругости бетона Eb
; αw
- то же, Ew
к Eb
;
µS
- коэффициент армирования, определяемый как отношение площади сечения арматуры к площади поперечного сечения элемента bh0
;
µw
- коэффициент поперечного армирования, определяемый как отношение площади сечения поперечной арматуры Аw
к площади bSw
;
α, ω, γb
2
- расчетные коэффициенты прочности железобетонных элементов, назначаемые по нормам [1];
φl
- коэффициент, учитывающий влияние длительного действия нагрузки на прогиб элемента в предельном состоянии.
1.2.1 Надкрановая часть колонны. Расчёт в плоскости изгиба
1.Вычисляют эксцентриситет продольной силы:
е0
=М/N. (3)
2.Определяют коэффициент условий работы γb
2
:
МІІ
=М-N(0,5·hb
-a) ; (4)
МІ
=М/
-N/
(0,5·hb
-a) , (5)
если МІ
≤0,82МІІ
, то γb
2
=1,1;
если МІ
>0,82МІІ
, то γb
2
=0,9.
3. Вычисляют расчётные параметры напряженного состояния внецентренно сжатого элемента:
ω=α-0,008·Rb
; (6)
. (7)
4.Если гибкость l0
/hb
>4, определяют по формуле(58) [1] условную критическую силу Ncr
:
М/
l
=Ml
+Nl
(0,5·h1
-a); (8)
φl
=1+ (9)
где β-коэффициент, принимаемый в зависимости от вида бетона по табл.30[1](для тяжёлого бетона β=1); М- момент относительно растянутой или наименее сжатой грани от действия постоянных, длительных и кратковременных нагрузок; Мl
- то же, от действия постоянных и длительных нагрузок.
; (10)
; (11)
. (12)
5.По формуле (1) находим коэффициент увеличения эксцентриситета продольной силы η.
6.Определяют расстояние от направления действия продольной силы N до центра тяжести сечения растянутой арматуры:
е=ео
·η+0,5·h1
-a. (13)
Колонна крайнего ряда.
1.Находим значение R
:
R
=ξR
(1-0,5· ξR
)≤0,4 . (14)
2. Необходимое количество сжатой арматуры определяют по следующим формулам соответственно для элементов из бетонов классов ВЗО и ниже:
 ; (15)
тоже для элементов из бетона класса выше В30
; (16)
Коэффициент армирования
µ/
s
=A/
s
/b1
·ho
, (17)
если µ/
s
<µmin
, A/
s
=µmin
· b1
·ho
. (16)
3.Если принятая площадь сечения сжатой арматуры A1
s
существенно превышает её значение, вычисленное по формулам (15) и (16), например, при отрицательном значении A1
s
, то площадь сечения растянутой арматуры согласно условиям (19)-(21):
; (19)
ξ=1- ; (20)
; (21)
4.Необходимое количество растянутой (менее сжатой) арматуры при µ1
s
≥µmin
вычисляют по формулам:
для бетона класса В30 и ниже
; (22)
для бетона классом выше В30
; (23)
причём всегда
As
≥µmin
· bb
·ho
.
(24)
Коэффициент армирования сечения
µs
= , (25)
Если µs
незначительно отличается от предварительно принятого µ1
s
, расчёт можно не уточнять; в ином случае повторяют расчёт при
µs
=0,5·(µs
+µ//
s
). (26)
5.Аналогично подбирают арматуру и на другие выгодные комбинации нагрузок:
К=к+1. (27)
Проверка прочности наклонных сечений.
1.Определяют φn
и длину проекции сечения с:
φn
=0,1·N/Rbt
· b1
·ho
≤0,5; (28)
с=0,25·Н2
. (29)
2.Поперечное усилие воспринимаемое бетоном
Rbt
·b1
·ho
.
(30)
3.Если Q≤Qb
,
n
, то поперечную арматуру устанавливают конструктивно, а если Q>Qb
,
n
, то производят подбор арматуры:
длина проекции наклонного сечения
.
(31)
величина поперечной силы, воспринимаемой бетоном сжатой зоны
; (32)
интенсивность поперечного армирования согласно формуле:
; (33)
длина проекции опасного наклонного сечения по формуле:
; (32)
уточнённая величина qw
; (35)
шаг поперечной арматуры
. (36)
Расчёт из плоскости изгиба колонны крайнего ряда
1.Если гибкость из плоскости изгиба λ*
=l*
o
/h*
1
меньше аналогичной величины в плоскости изгиба λ=lo
/h1
, расчёт колонны из плоскости изгиба не производят. Если l*
o
/h*
1
> lo
/h1
, то расчёт производят из плоскости изгиба.
2.Назначают максимальный случайный эксцентриситет .
3.Если гибкость l*
o
/h*
1
>4, определяют условную критическую силу Ncr
:
; (37)
; (38)
; (39)
; (40)
4.Определяют по формуле (1) η*
и е*
:
е*
= е*
0
· η*
+0,5·h*
1
-a . (41)
5.Высота бетона сжатой зоны
х=[ N//
+Rs
(As
+A1
s
)] /Rb
·b*
1
- при As
≠ A/
s
; (42)
х= N//
/Rb
·b*
1
- при As
=A1
s
; (42)
6.При выполнении условия
x≤ξR
·h*
o
(43)
N//
·e*
≤Rb
·b*
1
·x(h*
o
-0,5x)+Rsc
·A/
(h*
o
-a/
). (44)
Если условие (44) не выполняется, увеличивают площадь сечения арматуры:
. (45)
Если не выполняется условие (43), определяют относительную высоту сжатой зоны бетона ξ, а затем Х:
; (46)
 ; (47)
 ; (48)
для элементов из бетона класса В30 и ниже
; (49)
для элементов из бетона классом выше В30
; (50)
; (51)
x=ξ·h*
o
. (52)
7. Проверяют по формуле (44) прочность сечения.
Если условие (44) не выполняется, увеличиваем площадь сечения арматуры по формуле (45)
Колонна среднего ряда
1. Расчётные параметры напряжённого состояния таковы:
; (53)
; (54)
(55)
2. При выполнении условия
(56)
площадь сечения арматуры определяется по формуле:
. (57)
Если условие (56) не выполняется, площади арматуры определяют в такой последовательности:
для элементов из бетона классов В30 и ниже
; (58)
; (59)
для элементов из бетона классом выше В30
; (60)
; (61)
; (51)
в итоге
. (63)
причём
. (64)
Если условие (64) не выполняется, площадь сечения арматуры Аs
и А/
s
находят в зависимости от гибкости элемента.
3. Аналогично подбирают арматуру и на другие невыгодные расчётные комбинации нагрузок:
К=к+1. (65)
Расчёт из плоскости изгиба колонны среднего ряда
1. Расчёт выполняется аналогично расчёту из плоскости изгиба колонны крайнего ряда (см., формулы (37)-(47)).
2. Для элементов из бетона класса В30 и ниже
; (66)
для элементов из бетона классом выше В30
; (67)
; (68)
3. Высота бетона сжатой зоны
x*
=ξ·h*
o
. (69)
4. . Проверяют по формуле (44) прочность сечения.
Если условие (44) не выполняется, увеличиваем площадь сечения арматуры по формуле (45).
1.2.2 Подкрановая часть колонны
Расчёт в плоскости изгиба колонны сплошного сечения
1. Вычисляют эксцентриситет продольной силы ео
по формуле (3).
2. Определяют коэффициент условий работы:
МІ
=М/
+N/
(0,5·hn
-a) , (70)
МІІ
=М+N(0,5·hn
-a) ; (71)
еслиМІ
≤0,82МІІ
, тоγb2
=1,1, σsc,u
=400МПа;
при МІ
>0,82МІІ
, то γb
2
=0,9, σsc,
u
=500МПа.
3. Находят по формуле (7)
ξR
и Rb
= γb
2
· Rb
.
4. При гибкости lo/hn
>4 и для сечения III-III определяют условную критическую силу, последовательно вычисляя M/
e
, φe
, δe
,
min
, δe
, αs
·Is
, Ncr
, η и e по формулам (8) – (13).
5. Рассчитывают параметры , и δ по формулам (53) – (55).
6. При выполнения условия (56)
. (72)
Если условие (56) не выполняется, площадь арматуры определяют с учётом формул (58)-(62), последовательно вычисляя φs
, α и ξ; в итоге площадь арматуры Аs
и А/
s
находят по формуле (72). При этом
. (73)
7. Определяют коэффициент продольного армирования:
. (74)
8. Если μs
<μmin
, площадь арматуры Аs
и А/
s
назначают с учётом конструктивных требований.
9. Аналогично подбирают арматуру и на другие невыгодные расчётные комбинации усилий:
К=к+1. (75)
Проверка прочности наклонных сечений
Расчёт аналогичен соответствующему расчёту надкрановой части колонны.
Расчёт из плоскости изгиба
1. При гибкости l*
o/h*
2
> lo/h2
производят расчёт из плоскости изгиба.
2. Вычисляют коэффициент :
. (76)
3. Если l*
o/h*
n
>4 , то для сечения III-III определяют условную критическую силу Ncr
, η и e*
с использованием формул (38) – (41).
4. Высота бетона сжатой зоны:
x=N//
/Rb
·b*
2
. (77)
5. Дальнейший расчёт аналогичен соответствующему расчёту надкрановой части средней колонны.
Двухветвевая колонна. Расчёт в плоскости изгиба
1. Определив ω, δe
,
min
, δe
, ео
, МI
, МII
, γb
2
, σsc,
u
, Rb
и ξ, вычисляют для сечение III-III и гибкости lo
/i>14 Ncr
и η:
. (78)
; (79)
; (80)
. (81)
2. Находят изгибающие моменты и продольные силы в ветвях колонны:
Mb
=0,25·Q·s(82)
Тогда для колонны крайнего ряда в подкрановой ветви
Nb
=0,5·N+M·η/c; (83)
в наружной ветви
Nb
=0,5·N-M·η/c; (84)
для колонны среднего ряда
Nb
=0,5·N+M·η/c; (85)
3. Определяют величину эксцентриситетов ео
и е:
eо
=Mb
/Nb
; ( 2.86)
e=η·eo
+0,5·hw
-a. (87)
4. Дальнейший расчёт аналогичен соответствующему расчёту колонны сплошного сечения.
Расчёт распорки
1. Изгибающий момент и поперечная сила в распорке соответственно
Ms
=0,5·Q·S; (88)
Qs
=Q·S/C; (89)
2. Проверяют достаточность размеров поперечного сечения распорки из условия прочности в наклонном сечении:
φb
1
=1-β·Rb
; (90)
Qs
≤0,3· φb
1
·φw
·Rb
·bs
·h0
. (91)
3. Площадь сечения продольной арматуры:
. (92)
4. Устанавливают необходимость поперечного армирования:
C=0,25·l1
; (93)
; (94)
, (95)
если , то принимают равным ;
проверяют условие
Qs
≤ Qb
,
u
, (96)
если условие (96) выполняется, поперечную арматуру устанавливают конструктивно, в ином случае – по расчёту:
; (97)
; (98)
; (99)
; (100)
; (101)
. (102)
При проверке прочности наклонных сечений ветвей колонны расчёт аналогичен соответствующему расчёту подкрановой части колонны сплошного сечения.
Расчёт из плоскости изгиба ветвей колонны аналогичен соответствующему расчёту колонны сплошного сечения.
Расчёт подкрановой консоли колонны сплошного сечения.
1. Принятые размеры консоли в опорном сечении определяется по формуле в предположении, что поперечная арматура отсутствует:
(103)
Qc
′′
=2.5Rbt
b2
ho
, (104)
Если Qc
≤Qc
′′
, определяют прочность бетона на смятие:
. (105)
4. Изгибающий момент у грани колонны
Mc
=Qc
·ac
(106)
5. Площадь рабочей арматуры
(107)
при h>2.5 ac
Ao
=0.002 b2
ho.
(108)
1.3
Пример расчета и конструирования сплошной колонны
Для развития практических навыков приведем пример расчета колонны сплошного сечения крайнего ряда и двуветвевой колонны среднего ряда.
В таблице 1 приведены расчетные сочетания нагрузок, полученные в результате статического расчета рамы .
Расчет колонны по оси А
Надкрановая часть колонны
Размеры прямоугольного сечения надкрановой части: b = 0,5 м=500мм; h = 0,6 м=600мм; а = а'= 0,04 м=40мм; рабочая высота сечения he
=h - а = 0,6 - 0,04 = 0,56 м=560мм.
Таблица 1 Расчетные усилия и их сочетания для колонны ряда А (моменты – в кН∙м, силы – в кН).
| Нагрузка |
№ |
Ψ |
Усилия в сечениях колонны |
| При γf
> 1 |
| II-II |
III-III |
IV-IV |
| M |
N |
M |
N |
M |
N |
Q |
| Постоянная |
1 |
1 |
56,6 |
416,9 |
14,7 |
647,7 |
31,8 |
740,5 |
-2,1 |
| Снеговая полная |
2 |
1 |
21,5 |
143,6 |
7,1 |
143,6 |
14,4 |
143,6 |
-0,9 |
| 3 |
0,9 |
19,35 |
129,2 |
6,4 |
129,2 |
12,9 |
129,2 |
-0,81 |
| Dmax
,
l
на левой колонне |
4 |
1 |
-176,8 |
0 |
263,4 |
733,7 |
-96,8 |
733,7 |
44,2 |
| 5 |
0,9 |
-159,1 |
0 |
237,1 |
660,3 |
87,1 |
6603 |
39,8 |
| Тi
у ряда А |
6 |
1 |
±39,3 |
0 |
±39,3 |
0 |
±53,5 |
0 |
±12,3 |
| 7 |
0,9 |
±35,6 |
0 |
±35,6 |
0 |
±48,1 |
0 |
11,07 |
| Dmax
,
l
на средней колонне |
8 |
1 |
-63,6 |
0 |
70,7 |
223,8 |
-58,8 |
223,8 |
15,9 |
| 9 |
0,9 |
-57,2 |
0 |
63,6 |
201,4 |
-52,9 |
201,4 |
14,3 |
| Тi
у ряда Б |
10 |
1 |
±4,4 |
0 |
±4,4 |
0 |
±13,4 |
0 |
±1,1 |
| 11 |
0,9 |
±3,9 |
0 |
±3,9 |
0 |
±12,1 |
0 |
0,99 |
| Ветер слева |
22 |
1 |
2,0 |
0 |
2,0 |
0 |
176,8 |
0 |
-35,5 |
| 23 |
0,9 |
1,8 |
0 |
1,8 |
0 |
159,12 |
0 |
-31,9 |
| Ветер справа |
24 |
1 |
-2,0 |
0 |
-2,0 |
0 |
-176,8 |
0 |
35,5 |
| 25 |
0,9 |
-1,8 |
0 |
-1,8 |
0 |
-159,1 |
0 |
31,9 |
Таблица 2 Комбинация расчетных усилий для колонны ряда А (моменты – в кН∙м, силы – в кН).
| Варианты основного сочетания |
Комбинации |
Сечения |
| II-II |
III-III |
IV-IV |
| γf
> 1 |
| M |
N |
M |
N |
M |
N |
Q |
| Номер нагрузки |
| Вариант 1 – основное сочетание с учетом крановых и ветровых нагрузок |
Мmax
|
1+3+23 |
1+3+5+7+23 |
1+3+23 |
| 77,7 |
546,1 |
239,8 |
1437,2 |
203,8 |
869,7 |
-34,8 |
| Mmin
|
1+5+7+25 |
1+3+25 |
1+5+7+25 |
| -139,9 |
416,9 |
19,3 |
776,9 |
-262,5 |
1400,8 |
80,67 |
| Nmax
|
1+3+23 |
1+3+5+7+23 |
1+3+5+7+25 |
| 77,7 |
546,1 |
293,8 |
1437,2 |
-249,6 |
1530,0 |
79,87 |
| Вариант 2 – тоже, без учета крановых и ветровых нагрузок |
78,1 |
560,5 |
21,8 |
791,3 |
46,2 |
884,1 |
-3,0 |
Расчет в плоскости поперечной рамы
За расчетное принимают сечение II-II, усилия в котором значительно больше, чем в сечении I-I. При учете крановых нагрузок расчетная длина надкрановой части колонны lo=2H2
=2·4,0 = 8,0 м, гибкость колонны прямоугольного сечения l0
/h1
=8,0/0,6 =13,3>4.
Следовательно, необходимо учитывать влияние прогиба на величину эксцентриситета продольной силы.
Сечения колонн рассчитывают на наиболее невыгодное сочетание усилий; от всех нагрузок М = -139,9 кНм, N = 416,9 кН; от всех нагрузок, но без учета крановой и ветровой М' = 78,1 кН·м, N´
= 560,54 кН; от продолжительно действующих нагрузок (в данном случае постоянной) Ml
= 56,6 кН·м; N´
= 416,9 кН.
Так как в рассматриваемой комбинации усилий учтены нагрузки, суммарная продолжительность действия которых мала (ветровая и крановая), для определения коэффициента условий работы бетона γb
2
проверяют условие (2):
МІІ
=М-N(0,5·h1
-a)= - 139,9-416,9·(0,5·0,6-0,04) = -248,3кН·м;
МІ
=М/
-N/
(0,5·h1
-a) = 78,1-560,5·(0,5·0,6-0,04) = -67,6кН·м;
|MІ
| < 0,82 |MІІ
| = 0,82·248,3 = 203,6 кН·м.
Поскольку условие (2) выполнено, принимают γb
2
= 1.1. Расчетное сопротивление бетона
Rb
= 1.1·8.5 = 9.35 МПа.
Эксцентриситет продольной силы
℮0
= М/N= 139,9/416,9 = 0,336 м,
Случайный эксцентриситет
℮а
= 0,6/30 = 0,02 м и ℮а
=8,0/600 = 0,025 м.
Т.к. ℮0
>℮а
, случайный эксцентриситет не учитываем.
Определяют условную критическую силу по формуле (12):
М/
l
=Ml
+Nl
(0,5·h1
-a) =56,6+416,9·(0,5·0,6-0,04) = 164,9 кН·м;
М = МІІ
= -248,3 кН·м;
φl
= 1+ =1+1·164,9/248,3 = 1,66;

δе
= 0,336/0,6 = 0,56>δе,
min
= 0.5-0.01·8.0/0.6-0.01·9.35 = 0.273.
Задаются коэффициентом продольного армирования. В первом приближении принимают μs
=0.005, тогда
αs
Js
= μs
b1
h1
(0.5 h1
-a)2
Es
/Eb
= 0.005·0.5·0.6·(0.5·0.6-0.04)2
·200000/23000 = 0.882·10-3
м4
;
J=J2
=9·10-3
м4
;
Ncr
= .
Коэффициент увеличения эксцентриситет продольной силы согласно формуле (1)
.
Определяют расстояние от направления действия продольной силы до центра тяжести сечения растянутой арматуры:
℮=0,336·1,11+0,5·0,6-0,04=0,629 м=629мм.
Вычисляют по формуле (16) требуемую площадь сечения арматуры в сжатой зоне:
.
Следовательно, принимают ее конструктивно:
Аs
´
=0.002 b1
ho
= 0.002·500·560=560 мм2
=5,6 см2
.
Принимают 3ø16 А-Ш, Аs
=6.03 см2
.
Вспомогательный расчетный коэффициент определяется по формуле (19):
.
Относительная высота сжатой зоны определяется по формуле 2.20 или по специальной таблице 5 приложения ξ=0,17.
Площадь сечения растянутой арматуры по формуле (21)

Принимают 3Ø16 А-Ш, Аs
=6.03 см2
.
Коэффициент продольного армирования:
.
Незначительно отличается от предварительно принятого μs
=0.005. Следовательно, дальнейшее уточнение расчета можно не производить.
Аналогично производят подбор арматуры и на другое невыгодное сочетаний усилий: М= 77,7 кН·м; N=546,1 кН; М′
= 78,1 кН·м; N′
=560,5 кН; Мl
= 56,6 кН·м; Nl
=416,9 кН. По расчету Аs
′
<0, принимают конструктивно 3Ø16 А-Ш; Аs
′
=6.03 см2
; Аs
=1.10 см2
, принимают 3Ø16 А-Ш, Аs
=6.03 см2
.
Окончательно принимают с каждой стороны колонны по 3Ø16 А-Ш; Аs
=As
′
=6.03 см2
.
Расчет из плоскости изгиба
Размеры прямоугольного сечения: h1
*
=0.5 м, b1
*
=0.6 м. Расчетная длина надкрановой части колонны: l0
*
=1.5 H1
=1.5·4.0=6.0 м. Так как гибкость из плоскости изгиба l0
*
/h1
*
=6.0/0.5=12.0 меньше аналогичной величины в плоскости изгиба, то l0
/h1
=13,3 и расчет колонны из плоскости изгиба не производят.
Расчет прочности наклонных сечений
Действующая на колонну поперечная сила Q= 79,87 кН. При этом сочетании учтены нагрузки, суммарная продолжительность действия которых мала, поэтому γb2
=1.1.
По формуле (30) проверяют прочность колонны на действие поперечной силы:
,
где N- действующая продольная сила при принятой комбинации усилий.
Принимают φП
=0,23.
Длина проекции наклонного сечения согласно формуле (29)
C=0.25·4.0=1.00 м=100мм.

Поскольку Q=79870 Н< Qb
,и
=242900 МН, поперечную арматуру устанавливают конструктивно. Конструктивные требования определяются разделом 5 норм [1]. Нормируется расстояние между поперечными стержнями, соотношение диаметров продольной и поперечной арматуры из условия технологии сварки.
Подкрановая часть колонны
Размеры прямоугольного сечения:
b2
=0,5 м=500мм; h2
=0,8 м=800мм; а = а′
=0,04=40мм; h0
=0.8-0.04=0.76 м=760мм.
Расчетная длина
l0
=1.5 H2
=1.5·8.15=12.22.
Подбор сечений продольной арматуры производят по максимальным усилиям, действующим в сечениях.
Расчет в плоскости поперечной рамы
От полной нагрузки
М= -249,6 кН·м; N=1530.0 кН;
от всех нагрузок, но без учета ветровой и крановой
М′
= 46,2 кН·м; N′
=884,1 кН.
Вычисляют моменты внешних усилий относительно центра тяжести сечения арматуры соответственно с учетом и без учета ветровой нагрузки:


|MI
|<0.82 |MII
|=272,1 кН·м<0.82·800,4=616,3 кН·м.
Так как условие (2) выполнено, принимают γb
2
=1.1 и Rb
=9.35 МПа.
Ввиду того, что сечение ΙV-ΙV расположено у заделки колонны, η=1.
Величина эксцентриситета:
℮0
=249,6/1530,0=0,163;
℮=0,178·1+0,5·0,8-0,04=0,523 м=523мм.
По формуле (53) определяют относительную величину продольной силы

Так как

где 
то по формуле (54)
,

По формуле (57) площадь арматуры

Минимально необходимое армирование подкрановой части в зависимости от гибкости
l0
/ h2
= 12,22/0,8 = 15,28 <24,
тогда
As
=A′s
=0,002·b2
·h0
=0,002·500·760=760 мм2
=7,6 см2
.
Принимают по 4Ø16 A-III с каждой стороны (As
=A′s
=8,04 см2
).
Аналогично производят подбор арматуры и на другое невыгодное сочетание усилий: M=293,8 кН·м; N= 1437,2 кН; M′=21,8 кН·м; N′= 791,3 кН; As
=A′s
<0, следовательно, продольную арматуру устанавливают конструктивно.
Расчет из плоскости поперечной рамы
Расчетная длина
: l*0
= 0,8Н2
= 0,8·8, 15=6,52 м.
Поскольку
l*0
/h2
= 6,52/0,5 = 13,04 м < l0
/h*2
= 12,22/0,8 = 15,28
гибкость в плоскости изгиба, расчет из плоскости поперечной рамы не выполняют. Поперечную арматуру в подкрановой части устанавливают конструктивно, так как площадь поперечного сечения подкрановой части больше, чем надкрановой.
Расчет подкрановой консоли
Размеры консоли принимают с учетом конструктивных требований и из условия опирания и крепления подкрановых балок. Тогда
hk
=1,45 м; b=0,5м; а = а' = 0,04 м; - h.0к
= 1,41 м; lc
=0,55; ac
= 0,2 м.
Сечение подкрановой консоли рассчитывают от действия нагрузок: от веса подкрановой балки и подкранового рельса 138,7 кН и вертикальной крановой нагрузки 733,6 кН. Тогда Qс
=138,7+733,6=872,3 кН.
Проверяют принятые размеры консоли в опорном сечении по формулам (103) и (104):
Qc
=872300 Н<0,75(1+0)(1-200/1410)9,35·500·340 =1023000 Н,
а также
Qc
= 872300 Н < 2, 5·0,83·500·1410 = 1462000 Н.
Следовательно, размеры достаточны. Поперечное армирование консоли принимают в соответствии с конструктивными требованиями. Прочность бетона на смятие по формуле (105)

Прочность бетона на смятие обеспечена.

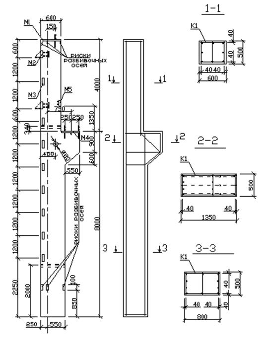
Рисунок 1 – Опалубочный чертеж и армирование колонны

Рисунок 2 – Арматурный пространственный каркас К-1
Определяют площадь сечения продольной арматуры, принимая одинаковое её количество в растянутой и сжатой зонах. При этом изгибающий момент у грани колонны
Мс
= 872300·200 = 174460000 Н·мм;
.
Принимают 3Ø12 А-Ш, As
= A′s
= 3,39 см2
.
Поперечную арматуру устанавливают согласно конструктивным требованиям. Опалубочный и арматурные чертежи колонны приведены на рисунке 1 и 2, закладных деталей - на рисунке 3.
1.4
Пример расчета и конструирования двухветевой колонны
Надкрановая часть колонны
Сечение прямоугольное:
bb
= 0,5 м; h g
= 0,6 м; a = a′ = 0,04 м; ho
= 0,6 - 0,04 = 0,56 м.
Расчет в плоскости поперечной рамы
Расчетная длина надкрановой части l0
= 2Н1
= 2·4,0 = 8,0.
Гибкость надкрановой части l0
/h1
= 8,0/0,6 =13,3> 4. Следовательно, необходимо учитывать влияние прогиба на величину эксцентриситета продольной силы.
Рассматривают наиневыгоднейшее сочетание нагрузок:
М = -139,9кН·м; N = 416,9 кН;
М′ = 78,1 кН·м; N′ = 560,5 кН;
Мl
= 56,6 кН·м; Nl
= 416,9 кН.
Определяют коэффициент условий работы бетона
MII
=M+N(0,5·hc
-a)=-139,9+416,9(0,5·0,6-0,04)=-31,5 кН·м;
MI
=M′+N′(0,5·hc
-a)=78,1+560,5(0,5·0,6-0,04)=223,8 кН·м.
Поскольку |MI
|=223,83 кН·м>0,82 MII
=0,82·31,5=25,83 кН·м, принимают γb
2
=0,9, Rb
=7,65 МПа, Rbt
=0,68 МПа.
Эксцентриситет продольной силы ℮0
=139,9/416,9=0,336 м, ℮0
=0,336 м > ℮a
=0,02 м, следовательно влияние случайного эксцентриситета не учитываем.
Условная критическая сила
M1,
l
=56,6+416,9·(0,5·0,6-0,04)=164,9 кН·м;
φl
=1+1·164,9/223,8=1,73;
δ=℮0
/h=0,336/0,6=0,56>δe
,
min
=0,5-0,01·8,0/0,6-0,01·7,65=0,29;
.
Величина коэффициента
;
Эксцентриситет
℮=0,336·1,13+0,5·0,6-0,04=0,639 м=639мм.
По формулам (53) и (54)
,
.
В итоге площадь сечения арматуры определяется по формуле 2.57:

Аналогично производят подбор арматуры и на другие невыгодные сочетания нагрузок:
М = 77,7 кН·м; N = 546,1 кН;
М′ = 78,1 кН·м; N′ = 560,5 кН; Мl
= 56,6кН·м; Nl
= 416,9 кН.
В результате
As
=A′s
=4,02 см2
.
Принимаем окончательно для надкрановой части 4Ø14 A-III, As
=A′s
=6,16 см2
.
Расчёт из плоскости поперечной рамы
Размеры прямоугольного сечения
h*1
=0,5 м; b1
=0,6 м; l*0
=1,5·4,0=6,0 м.
Расчёт из плоскости изгиба не производят, так как гибкость из плоскости изгиба
l*0
/ h*1
=6,0/0,5=12,0
меньше гибкости в плоскости изгиба 8,0/0,6=13,3.
Проверка прочности наклонных сечений
Проверка производится аналогично расчету по наклонным сечениям сплошной колонны.
Подкрановая часть колонны
Подкрановая часть состоит из двух ветвей: высота всего сечения h2
=1,2 м; b2
=0,5 м; сечение ветви
hw
=0,25 м; aw
=a′w
=0,03 м; h0w
=0,22 м; δ=a′/h0
=0,03/0,22=0,136;
расстояние между осями ветвей с=0,95 м; расстояние между осями распорок s=H1
/nc
=8,15/4=2,04. Расчётная длина подкрановой части l0
=1,5·H2
=1,5·8,15=12,22 м.
Подбор продольной арматуры производят по наибольшим расчётным усилиям в сечениях III-III и IV-IV.
Расчёт в плоскости поперечной рамы
Первоначально расчёт производят на следующую комбинацию усилий:
М = -249,6 кН·м; N = 1530,0 кН; Q=79,87 кН;
М′ = 46,2 кН·м; N′ = 884,1 кН.
Определяют моменты внешних сил относительно центра тяжести растянутой (или менее сжатой) арматуры в ветви:
MII
=374,2 кН·м;
MII
=-249,6+1530·(0,5·1,2-0,03)=699 кН·м;
MI
= 46,2+884,1·(0,5·1,2-0,03)=594,5 кН·м>0,82· MII
=0,82·699=573,2 кН·м.
Следовательно, γb
2
=0,9, а Rb
=0,9·8,5=7,65 МПа.
Находят по формулам (85) и (82) продольные усилия и изгибающие моменты в ветвях колонны:
;
Mb
= ±0,25·79,87·2,04= ±40,3 кН·м.
Так как ветви колонны испытывают действие равных по абсолютной величине изгибающих моментов, принимают симметричное армирование ветвей.
Величина эксцентриситета:
℮0
=Mb
/Nb
=40,3/527,3=0,077 м=77мм;
℮=0,077+0,5·0,25-0,03=0,172 м=172мм;
;
.
Поскольку , то по формуле (59) с учётом зависимости (58)
;
.
По формуле (63) требуемая площадь сечения арматуры
.
Аналогично производят подбор арматуры и на другие комбинации усилий:
М = 293,8 кН·м; N = 1437,2 кН;
М′ = 21,8 кН·м; N′ = 791,3 кН;
As
=A′s
=420 мм2
=4,20 см2
;
М =-262,5кН·м; N = 1400,8 кН;
М′ = 46,2 кН·м; N′ = 884,1 кН;
As
=A′s
=789 мм2
=7,89 см2
.
Принимают с каждой стороны ветви (внутренней и наружной) 3Ø18 A-
III (As
=A′s
=7,63 см2
(-3,5%)).
Расчёт распорки
Размеры прямоугольного сечения:
bs
=0,5 м; hs
=0,6 м; a=a′=0,04 м; h0
=0,56 м.
Наибольшая поперечная сила
Qmax
=79,87 кН.
Изгибающий момент и поперечная сила в распорке определяются по формулам (88) и (89):
Ms
=0,5·79,87·2,04=81,47 кН·м;
Qs
=79,87·2,04/1,05=155,18 кН.
Проверяют достаточность размеров поперечного сечения распорки по формуле (91):
φb
1
=1-0,01·7,65=0,924,
Qs
=155,18 кН<0,3·0,924·1·7,65·500·560=591 кН.
Следовательно, размеры поперечного сечения достаточны. Поскольку эпюра моментов в распорке двузначная, назначают двойное симметричное армирование (см. формулу (92)):
.
Принимают 3Ø14 A-III (As
=A′s
=4,62 см2
).
Устанавливают необходимость поперечного армирования. Пролёт распорки равен расстоянию в свету между ветвями: l=0,7 м, с=0,25·l=0,175 м.
Определяют величину Qb
,
u
по формулам (94), (95):
, принимают Qb
,
u
=913,92 кН.
Поскольку
Qs
=591 кН<913,92 кН
– поперечную арматуру устанавливают конструктивно.
Расчёт из плоскости поперечной рамы
Расчётная длина l*0
=0,8·H2
=0,8·8,15=6,52 м. Гибкость подкрановой части l*0
/h*w
=6,52/0,5=13,04 м; аналогичная величина в плоскости изгиба 12,22/1,2=10,18<13,04. Следовательно, производят расчёт из плоскости изгиба, при этом эксцентриситет продольной силы принимают равным случайному:
. N=1530 кН,
℮=0,0167+0,5·0,5-0,03=0,237 м.
По формуле (77) определяют высоту сжатой зоны бетона:
,
так как
x=0,4 м>ξR
·h0
=0,607·0,47=0,285 м
принимают х= ξ·h0
.
Относительная высота сжатой зоны ξ по формуле (49) с учётом зависимостей (46) и (47)
;
;
.
В результате
х = 0,887·0,47=0,42 м.
По формуле (44) проверяют прочность сечения:
1530000·237=362610000Нмм<7,65·2·250·420·(470-0,5·420)+365·763·(470-30)=540227800Нмм,
следовательно, прочность сечения из плоскости рамы обеспечена.
Расчёт прочности наклонных сечений ветвей
Проверяют необходимость постановки поперечной арматуры
, принимают ;
с=0,25·H2
=0,25·8,15=2,03 м;
;
Qb
,
u
=18 кН<0,6·(1+0,5)·0,68·500·220=67 кН.
Следовательно, принимают
Qb
,
u
=67 кН;
Q=79,87 кН>67кН ,
следовательно необходимо рассчитать поперечную арматуру по формулам(31) - (36).
Опалубочный и арматурные чертежи колонны показаны на рисунке 4 – 6, закладных деталей – на рисунке 3.

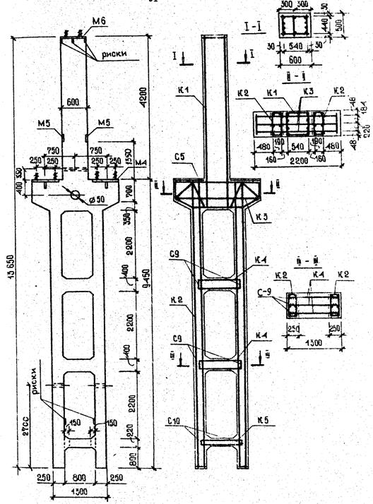
Рисунок 4 - Опалубочный чертёж и армирование двухветвевой колонны

Рисунок 5 - Арматурные изделия К1…К5 и С-5, С-7…С-10 двухветвевой колонны

Рисунок 6 - Арматурные изделия С-1…С-4, С-6 и С-11 двухветвевой колонны
СПИСОК ЛИТЕРАТУРЫ
1. СНиП 2.03.01-84: Бетонные и железобетонные конструкции / Госстрой СССР. - М.: ЦИТП Госстроя СССР, 1985. - 79 с.
2.СНиП 2.01.07-85: Нагрузки и воздействия / Госстрой СССР. - М.: ЦИТП Госстроя СССР, 1986. – 35 с.
4. Байков В. Н., Сигалов Э. Е. Железобетонные конструкции. Общий курс: Учебник для вузов.- 4-е изд. - М.: Стройиздат, 1985. - 728 с.
4. Железобетонные конструкции: Курсовое и дипломное проектирование / Под ред. А.Я. Барашикова. - Киев: Вища школа, 1987. - 416с.
5. Железобетонные конструкции / Под ред. Полякова Л, П., Лысенко Е.Ф., Кузнецова Л.В. - К.: Вища школа, 1984. - 352 с.
6. Полищук В. П., Черняева Р. П. Проектирование железобетонных конструкций производственных зданий: Учебное пособие. - Тула, 1983. - 109 с.
7. Проектирование железобетонных конструкций: Справочное пособие / А.Б.Голышев, В.Я. Бачинский и др. Под ред. А.Б.Голышева. Киев: Будiвельник, 1985. - 496 с.
8. Руководство по проектированию предварительно напряженных железобетонных конструкций из тяжелого бетона. - М.: Стройиздат, 1977. - 289 с.
Таблица 1 Приложение.
Вид
сопротивления
|
Бетон |
Нормативные , и расчетные сопротивления бетона для предельных состояний второй группы и ,МП |
| В15 |
В20 |
В25 |
В30 |
В35 |
В40 |
В45 |
В50 |
В55 |
Сжатие осевое (призменная прочность)  |
Тяжелый и мелко-
зернистый
|
11,0 |
15,0 |
18,5 |
22,0 |
25,5 |
29,0 |
32,0 |
36,0 |
39,5 |
Растяжение
осевое и
|
Тяжелый |
1,15 |
1,4 |
1,6 |
1,8 |
1,95 |
2,1 |
2,2 |
2,3 |
2,4 |
Таблица 2
Вид
сопротивления
|
Бетон |
Расчетные сопротивления бетона по прочности на сжатие для предельных состояний первой группы и , МПа. |
| В15 |
В20 |
В25 |
В30 |
В35 |
В40 |
В45 |
В50 |
В55 |
Сжатие осевое
(призменная прочность) 
|
Тяжелый и мелко-
зернистый
|
8,5 |
11,5 |
14,5 |
17,0 |
19,5 |
22,0 |
25,0 |
27,5 |
30,0 |
Растяжение осевое  |
Тяжелый |
0,75 |
0,9 |
1,05 |
1,2 |
1,3 |
1,4 |
1,45 |
1,55 |
1,6 |
Таблица 1
| Бетон |
Начальные модули упругости бетона при сжатии и растяжении Ев
·10-3
при классе бетона по прочности на сжатие |
| В15 |
В20 |
В25 |
В30 |
В35 |
В40 |
В45 |
В50 |
В55 |
| Тяжелый: |
| естественного твердения |
23,0 |
27,0 |
30,0 |
32,5 |
34,5 |
36,0 |
37,5 |
39,0 |
39,5 |
| подвергнутый тепловой обработке при атмосферном давлении; |
20,5 |
24,0 |
27,0 |
29,0 |
31,0 |
32,5 |
34,0 |
35,0 |
35,5 |
Таблица 2
| Класс арматуры |
Диаметр арматуры |
Нормативные сопротивления Rsn
и расчетные сопротивления растяжению для предельных состояний 2 группы , МПа |
Расчетные сопротивления арматуры для предельных состояний 1 группы, МПа |
Модуль упругости арматуры, Еs
, МПа |
| Растяжению |
Сжатию Rsc
|
Про
дольной Rs
|
Поперечной (хомутов и отогнутых стержней)  |
| 1 |
2 |
3 |
4 |
5 |
6 |
7 |
| А-I |
235 |
225 |
175 |
225 |
21 |
| A-II |
295 |
280 |
225 |
280 |
| A-III |
6-8
10-40
|
390
390
|
355
365
|
285
290
|
355
365
|
20 |
| A-IV |
590 |
510 |
405 |
450 |
| A-V |
785 |
680 |
545 |
500 |
19 |
| A-VI |
985 |
815 |
650 |
500 |
| 1 |
2 |
3 |
4 |
5 |
6 |
7 |
| Вр
-I |
3-5 |
490 |
410 |
290 |
375 |
17 |
| В-II |
3
4-5
6
7
8
|
1500
1400
1255
1200
1100
|
1250
1170
1050
1000
915
|
1000
940
835
785
680
|
400
400
400
400
400
|
20 |
| Вр
-II |
3
4-5
6
7
8
|
1500
1400
1200
1100
1000
|
1250
1170
1000
915
850
|
1000
940
785
730
680
|
500
500
500
500
500
|
20 |
| К-7 |
6-12
15
|
1500
1400
|
1250
1180
|
1000
945
|
400
400
|
18 |
| К-19 |
14 |
1500 |
1250 |
1000 |
400 |
18 |
Таблица 5.П
| x |
z |
am
|
x |
z |
am
|
x |
z |
am
|
| 0,01 |
0,995 |
0,01 |
0,25 |
0,875 |
0,219 |
0,49 |
0,755 |
0,37 |
| 0,02 |
0,99 |
0,02 |
0,26 |
0,87 |
0,226 |
0,50 |
0,75 |
0,375 |
| 0,03 |
0,985 |
0,03 |
0,27 |
0,865 |
0,234 |
0,51 |
0,745 |
0,38 |
| 0,04 |
0,98 |
0,039 |
0,28 |
0,86 |
0,241 |
0,52 |
0,74 |
0,385 |
| 0,05 |
0,975 |
0,049 |
0,29 |
0,855 |
0,243 |
0,53 |
0,736 |
0,39 |
| 0,06 |
0,97 |
0,058 |
0,30 |
0,85 |
0,255 |
0,54 |
0,73 |
0,394 |
| 0,07 |
0,965 |
0,068 |
0,31 |
0,845 |
0,262 |
0,55 |
0,725 |
0,399 |
| 0,08 |
0,96 |
0,077 |
0,32 |
0,84 |
0,269 |
0,56 |
0,72 |
0,403 |
| 0,09 |
0,955 |
0,086 |
0,33 |
0,835 |
0,276 |
0,57 |
0,715 |
0,407 |
| 0,10 |
0,95 |
0,095 |
0,34 |
0,83 |
0,282 |
0,58 |
0,71 |
0,412 |
| 0,11 |
0,945 |
0,104 |
0,35 |
0,825 |
0,239 |
0,59 |
0,705 |
0,416 |
| 0,12 |
0,94 |
0,113 |
0,36 |
0,82 |
0,295 |
0,60 |
0,7 |
0,42 |
| 0,13 |
0,935 |
0,122 |
0,37 |
0,815 |
0,302 |
0,61 |
0,695 |
0,424 |
| 0,14 |
0,93 |
0,13 |
0,38 |
0,81 |
0,308 |
0,62 |
0,69 |
0,428 |
| 0,15 |
0,925 |
0,139 |
0,39 |
0,805 |
0,314 |
0,63 |
0,685 |
0,432 |
| 0,16 |
0,92 |
0,147 |
0,40 |
0,8 |
0,32 |
0,64 |
0,68 |
0,435 |
| 0,17 |
0,915 |
0,156 |
0,41 |
0,795 |
0,326 |
0,65 |
0,675 |
0,439 |
| 0,18 |
0,91 |
0,164 |
0,42 |
0,79 |
0,332 |
0,66 |
0,672 |
0,442 |
| 0,19 |
0,905 |
0,172 |
0,43 |
0,785 |
0,338 |
0,67 |
0,665 |
0,446 |
| 0,20 |
0,9 |
0,18 |
0,44 |
0,78 |
0,343 |
0,68 |
0,66 |
0,449 |
| 0,21 |
0,895 |
0,188 |
0,45 |
0,775 |
0,349 |
0,69 |
0,655 |
0,452 |
| 0,22 |
0,89 |
0,196 |
0,46 |
0,77 |
0,354 |
0,70 |
0,65 |
0,455 |
| 0,24 |
0,88 |
0,211 |
0,48 |
0,76 |
0,365 |
- |
- |
- |
Таблица 6- Сортамент стержневой и проволочной арматуры
| Æ, мм |
Масса, Н/м |
Арматура |
| Стержневая классов |
Проволочная классов |
| A-II |
A-III |
A-IV |
AT
-IV |
A-V |
AT
-V |
AT
-VI |
BP
-I
B-I
|
BP
-II
B-II
|
| 3 |
0,55 |
- |
- |
- |
- |
- |
- |
- |
Х |
Х |
| 4 |
0,92 |
- |
- |
- |
- |
- |
- |
- |
Х |
Х |
| 5 |
1,44 |
- |
- |
- |
- |
- |
- |
- |
Х |
Х |
| 6 |
2,22 |
- |
Х |
- |
- |
- |
- |
- |
- |
Х |
| 7 |
3,02 |
- |
Х |
- |
- |
- |
- |
- |
- |
Х |
| 8 |
3,95 |
- |
Х |
- |
- |
- |
- |
- |
- |
Х |
| 9 |
4,99 |
- |
Х |
- |
- |
- |
- |
- |
- |
- |
| 10 |
6,17 |
Х |
Х |
Х |
Х |
Х |
Х |
Х |
- |
- |
| 12 |
8,88 |
Х |
Х |
Х |
Х |
Х |
Х |
Х |
- |
- |
| 14 |
12,08 |
Х |
Х |
Х |
Х |
Х |
Х |
Х |
- |
- |
| 16 |
15,78 |
Х |
Х |
Х |
Х |
Х |
Х |
Х |
- |
- |
| 18 |
19,98 |
Х |
Х |
Х |
Х |
Х |
Х |
Х |
- |
- |
| 20 |
24,66 |
Х |
Х |
Х |
Х |
- |
Х |
Х |
- |
- |
| 22 |
29,84 |
Х |
Х |
Х |
Х |
- |
Х |
Х |
- |
- |
| 25 |
38,53 |
Х |
Х |
Х |
Х |
- |
Х |
Х |
- |
- |
| 28 |
48,34 |
Х |
Х |
Х |
- |
- |
- |
- |
- |
- |
| 32 |
63,13 |
Х |
Х |
Х |
- |
- |
- |
- |
- |
- |
| 36 |
79,9 |
Х |
Х |
- |
- |
- |
- |
- |
- |
- |
| 40 |
98,7 |
Х |
Х |
- |
- |
- |
- |
- |
- |
- |
Таблица
7- Площадь поперечного сечения арматуры
| Æ, мм |
Расчетная площадь поперечного сечения, см2
при числе стержней |
| 1 |
2 |
3 |
4 |
5 |
6 |
7 |
8 |
9 |
10 |
| 1 |
2 |
3 |
4 |
5 |
6 |
7 |
8 |
9 |
10 |
11 |
| 3 |
0,071 |
0,14 |
0,21 |
0,26 |
0,35 |
0,42 |
0,49 |
0,57 |
0,64 |
0,71 |
| 4 |
0,126 |
0,25 |
0,36 |
0,50 |
0,63 |
0,76 |
0,88 |
1,01 |
1,13 |
1,26 |
| 5 |
0,196 |
0,39 |
0,59 |
0,79 |
0,98 |
1,18 |
1,37 |
1,57 |
1,77 |
1,96 |
| 6 |
0,283 |
0,57 |
0,86 |
1,13 |
1,42 |
1,70 |
1,98 |
2,26 |
2,55 |
2,83 |
| 7 |
0,385 |
0,77 |
1,15 |
1,54 |
1,92 |
2,31 |
2,69 |
3,08 |
3,46 |
3,85 |
| 8 |
0,503 |
1,01 |
1,51 |
2,01 |
2,51 |
3,02 |
3,52 |
4,02 |
4,53 |
5,03 |
| 9 |
0,636 |
1,27 |
1,91 |
2,54 |
3,18 |
3,82 |
4,45 |
5,09 |
5,72 |
6,36 |
| 10 |
0,789 |
1,57 |
2,36 |
3,14 |
3,93 |
4,71 |
5,50 |
6,28 |
7,07 |
7,85 |
| 12 |
1,131 |
2,26 |
3,39 |
4,52 |
5,65 |
6,79 |
7,92 |
9,05 |
10,18 |
11,31 |
| 14 |
1,539 |
3,08 |
4,62 |
6,16 |
7,69 |
9,23 |
10,77 |
12,31 |
13,85 |
15,39 |
| 16 |
2,011 |
4,02 |
6,03 |
8,04 |
10,05 |
12,06 |
14,07 |
16,08 |
18,10 |
20,11 |
| 18 |
2,545 |
5,09 |
7,63 |
10,18 |
12,72 |
15,27 |
17,81 |
20,36 |
22,90 |
25,45 |
| 20 |
3,142 |
6,28 |
9,41 |
12,56 |
15,71 |
18,85 |
21,99 |
25,14 |
28,28 |
31,42 |
| 22 |
3,801 |
7,60 |
11,40 |
15,20 |
19,00 |
22,81 |
26,61 |
30,41 |
34,21 |
38,01 |
| 25 |
4,909 |
9,82 |
14,73 |
19,63 |
24,54 |
29,45 |
34,36 |
39,27 |
44,03 |
49,09 |
| 28 |
6,158 |
12,32 |
18,47 |
24,63 |
30,79 |
36,95 |
43,10 |
49,26 |
55,42 |
61,58 |
| 32 |
8,042 |
16,08 |
24,13 |
32,17 |
40,21 |
48,25 |
56,30 |
64,34 |
72,38 |
80,42 |
| 36 |
10,18 |
20,36 |
30,54 |
40,72 |
50,90 |
61,08 |
71,26 |
81,44 |
91,62 |
101,8 |
| 40 |
12,56 |
25,12 |
37,68 |
50,24 |
62,80 |
75,36 |
87,92 |
100,4 |
113,0 |
125,6 |
|